ܩܸܢܛܪܘܿܢ ܪܘܼܚܵܢܵܝܵܐ ܕ(ܠܵܠܸܫ) ܘܩܲܒ݂ܪܵܐ ܕܫܹܝܟ݂ ܥܵܐܕܝܼ

ܢܵܦܹܠ ܩܸܢܛܪܘܿܢ ܪܘܼܚܵܢܵܝܵܐ ܕܠܵܠܸܫ ܕܚܵܒܹܫ ܠܩܲܒ݂ܪܵܐ ܕܫܹܝܟ݂ ܥܵܐܕܝܼ ܥܲܠ ܣܸܪܛܵܐ ܕ 4 18 46 ݂ 36 ܓܲܪܒܝܵܐܝܼܬ: ܘܥܲܠ ܣܸܪܛܵܐ ܕ 8 09 18 ݂ 43 ܡܲܕܢܚܵܐܝܼܬ: ܘܥܲܠ ܪܵܡܘܼܬܐ ܕ(861) ܡܝܼܬܖܹ̈ܐ ܡܼܢ ܫܲܘܝܘܼܬ݂ ܫܸܛܚܵܐ ܕܝܲܡܵܐ ܓܲܘ ܗܹܘܦܲܪܟܝܼܵܐ ܕܢܝܼܢܘܹܐ[1] ݂

_______

[1] ܗܵܕܟ݂ܵܐ ܐܬܹܐ ܠܹܗ ܓܲܘ ܓܘܼܫܡܵܐ ܥܲܪܒ݂ܵܝܵܐ ܘܐܵܦ ܐܸܢܓܠܹܝܫܵܝܵܐ ݂ (ܡܬܲܪܓܡܵܢܵܐ)

ܟܝܵܢܵܐ ܘܡܲܚܵܪܘܼܬܐ ܐܲܪܕܸܟ݂ܠܵܝܬܐ ܓܲܘ ܠܵܠܸܫ: ܡܬܲܪܨܝܼ ܚܕܵܐ ܡܫܘܼܚܬܐ (مساحة) ܩܲܕܝܼܫܬܐ ܘܲܦܪܝܼܫܬܐ ܒܐܵܕܫܵܗ̇: ܐܲܝܟܵܐ ܕܐܝܼܬ ܠܟܠ ܟܹܐܦܵܐ ܘܲܠܟܠ ܒܸܢܝܵܢܵܐ ܚܲܕ ܣܘܼܟܵܠܵܐ ܪܘܼܚܵܢܵܝܵܐ ݂ ܦܝܼܫܠܹܗ ܪܵܓ݂ܘܿܠܵܐ ܕܠܵܠܸܫ: ܕܝܼܠܹܗ ܚܲܕ ܩܘܼܛܒܵܐ (قطب) ܪܘܼܚܵܢܵܝܵܐ ܐܸܣܵܝܵܐ: ܦܝܼܫܠܹܗ ܦܢܝܼܬܐ (القبلة): ܐܲܘ ܨܲܘܒܵܐ ܕܲܨܠܘܿܬܐ ܠܲܡܗܘܼܡܢܹ̈ܐ ܐܝܼܙܝܼܕܵܝܹ̈ܐ ݂

ܠܵܠܸܫ ܡܠܝܼܬܐ ܝܠܵܗ̇ ܘܲܚܒ݂ܝܼܨܬܐ ܒܚܲܝܹ̈ܐ ݂ ܓܵܘܵܗ̇ ܬܵܦܩܝܼ ܟܠܲܝܗܝ ܐܝܼܙܝܼܕܵܝܹ̈ܐ ܡܼܢ ܥܝܼܪܵܐܩ ܘܡܼܢ ܐܲܬ݂ܖ̈ܵܘܵܬܐ ܕܲܦܪܝܼܣܘܼܬܐ(الانتشار) ܠܲܡܢܲܚܘܿܡܹܐ ܘܡܲܒܣܘܿܡܹܐ ܢܲܦ̮ܫܵܬܲܝܗܝ ݂ ܒܸܕ ܚܵܙܹܝܚ ܠܚܲܕܟܡܵܐ ܝܼܩܖ̈ܵܬ݂ܐ ܡܟܲܘܢܹ̈ܐ ܡܼܢ ܬܠܵܬܐ ܕܵܖܹ̈ܐ ܡܲܥܒܸܪܝܼ ܚܲܕ ܝܲܘܡܵܐ ܓܡܝܼܪܵܐ ܬܵܡܵܐ ܘܩܵܝܡܝܼ ܒܲܚܕܵܪܵܐ ܓܲܘ ܥܵܒ݂ܵܐ: ܘܐܵܬܝܼ ܦܲܖ̈ܨܘܿܦܹܐ ܓܒ݂ܝܼܖܹ̈ܐ ܚܲܕܬܵܐܝܼܬ ܠܡܲܥܡܘܿܕܹܐ ܫܲܒ݂ܖ̈ܲܝܗܝ ܬܵܡܵܐ ݂

ܘܦܵܐܹܫ ܚܫܝܼܒ݂ܵܐ ܩܲܒ݂ܪܵܐ ܕܫܹܝܟ݂ ܥܵܐܕܝܼ: ܗܿܘ ܢܘܼܩܙܵܐ ܣܲܪܢܵܝܵܐ ܓܲܘ ܟܠ ܚܙܘܼܩܝܵܐ ܕܚܲܓܵܐ (الحج) ݂ ܟܵܪܹܟ݂ ܒܹܗ ܡܼܢ ܬܠܵܬܐ ܓܹܒܵܢܹ̈ܐ: ܒܹܝܬ ܡܲܥܡܘܿܕܝܼܬܐ ܕ(ܟܵܢܝܵܐ ܣܦܹܐ) ܓܲܘ ܬܲܝܡܢܵܐ ܡܲܥܪܒ݂ܵܝܵܐ: ܘܩܲܒ݂ܖܹ̈ܐ ܕ(ܐܝܼܙܕܝܼܢܵܐ ܡܹܝܪ ܘܫܹܝܟ݂ ܫܲܡܣ) ܡܼܢ ܡܲܥܪܒ݂ܵܐ ݂


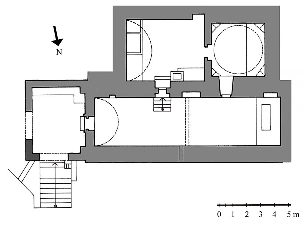
مخطط ضريح الشيخ عدي في المجمع الروحي للإزيديين في لاليش © د. بيرجول أسكيلديز سنغول، جامعة أكسفورد و مونبلييه الثالثة.

Plan monument

ܡܲܘܕܥܵܢܘܵܬܹ̈ܐ ܒܘܼܕ ܗܵܕܹܐ ܦܪܝܼܣܬܐ:

ܩܝܼܡܠܹܗ ܒܛܘܼܝܵܒ݂ܵܐ ܕܓܘܼܫܡܵܐ ܕܗܵܕܹܐ ܦܪܝܼܣܬܐ (النشرة) ܡܲܠܦܵܢܵܐ (ܒܹܝܪܓܘܿܠ ܐܲܫܝܼܟܝܼܠܕܸܙ ܫܸܢܓ݂ܘܿܠ): ܕܝܼܠܹܗ ܚܲܕ ܡܬܲܫܥܝܼܬܵܢܵܐ ܡܸܬ̇ܬܕܝܼܠܵܢܵܐ ܒܝܵܪܬܘܼܬܐ ܘܡܲܪܕܘܼܬܐ ܕܐܝܼܙܝܼܕܵܝܹ̈ܐ ݂ ܡܲܠܦܵܢܵܐ ܫܸܢܓ݂ܘܿܠ: ܝܼܠܹܗ ܒܵܨܘܿܝܵܐ ܡܫܲܘܬܦܵܢܵܐ ܓܲܘ ܒܹܝܬ ܨܲܘܒܵܐ ܕ(ܦܘܿܠ ܒ݂ܵܠܝܼܪܝܼ ܡܘܿܢܦܹܠܹܗ ܬܠܝܼܬܵܝܵܐ): ܘܒܹܝܬ ܕܪܵܫܵܐ ܕܗܸܖ̈ܓܹܐ ܦܖ̈ܲܢܣܵܝܹܐ ܓܲܘ ܐܸܣܛܲܢܒܘܿܠ ݂ ܘܝܼܠܹܗ ܣܵܝܘܿܡܵܐ ܕܡܲܪܡܝܼܬܐ (أطروحة) ܕܕܸܟܬܘܿܪܵܗ “ܝܵܪܬܘܼܬܐ ܕܐܝܼܙܝܼܕܵܝܹ̈ܐ: ܐܘܼܡܵܢܘܼܬܐ ܕܡܲܚܵܪܘܼܬܐ ܘܓܠܝܼܦܵܬ̈ܐ (منحوتات) ܒܘܼܝܵܐܵܝܹ̈ܐ ܓܲܘ ܥܝܼܪܵܐܩ ܘܬܘܼܪܟܝܼܵܐ ܘܐܲܪܡܝܼܢܝܵܐ”: ܕܦܝܼܫܠܵܗ̇ ܡܘܼܩܪܲܒ݂ܬܐ ܒܫܲܢ݇ܬܐ ܕ2006 ܠܒܹܝܬ ܨܲܘܒܵܐ ܕܦܵܪܝܼܣ ܩܲܕܡܵܝܬܐ (ܦܵܢܬ݂ܝܘܿܢ ܣܘܿܪܒܘܿܢ): ܡܢܵܬܐ ܕܐܘܼܡܵܢܘܼܬܐ ܘܝܘܿܠܦܵܢ ܐܲܬ݂ܖܹ̈ܐ ܐܸܣܠܵܡܵܝܹ̈ܐ ݂ ܗܵܕܹܐ ܡܲܪܡܝܼܬܐ ܚܵܒ݂ܫܵܐ ܚܲܕ ܡܚܲܘܝܵܢܵܐ ܐܸܫܛܵܪܵܝܵܐ ܡܼܢ (88) ܝܲܕܥܹ̈ܐ ܐܲܬ݂ܖ̈ܵܝܹܐ (ܩܲܒ݂ܖ̈ܵܘܵܬܐ: ܘܡܲܣܥܖܹ̈ܐ: ܘܕܘܼܟܵܢܹ̈ܐ ܕܡܲܥܡܘܿܕܝܼܬܐ: ܘܓܸܫܖ̈ܵܢܹܐ: ܘܓܸܦܹ̈ܐ): ܘ(60) ܓܠܝܼܦܵܬ̈ܐ ܒܘܼܝܵܐܵܝܹ̈ܐ ܒܐܸܣܟܹܝܡܵܐ ܕ(ܣܘܼܣܝܹ̈ܐ: ܘܒܲܖ̈ܥܵܢܹܐ: ܘܥܸܖ̈ܒܹܐ: ܘܐܲܖ̈ܝܹܐ) ܓܲܘ ܓܲܪܒܝܵܐ ܕܥܝܼܪܵܐܩ ܘܬܘܼܪܟܝܼܵܐ ܘܐܲܪܡܝܼܢܝܵܐ ݂ ܦܝܼܫܠܵܗ̇ ܦܪܝܼܣܬܐ ܗܵܕܹܐ ܡܲܪܡܝܼܬܐ ܒܝܲܕ: I. B. Tauris  ܓܲܘ (ܠܲܢܕܘܿܢ ܘܲܢܝܘܿܝܘܿܪܟ) ܒܫܲܢ݇ܬܐ ܕ2010 ݂ ܘܦܝܼܫܠܗ݇ܘܿܢ ܡܘܿܘܣܸܦܹ̈ܐ ܢܘܼܗܵܖܹ̈ܐ ܕܝܲܗܠܵܐ ܕ(ܡܝܼܙܘܿܦܘܿܬܵܡܝܵܐ) ܥܲܠ ܗܵܢ ܓܘܼܫܡܵܐ: ܕܦܝܼܫܠܗ݇ܘܿܢ ܫܩܝܼܠܹ̈ܐ ܡܼܢ ܬܦܵܩܝܵܬܐ ܕܝܲܗܠܵܐ ܕܚܵܒܹܫ: ܦܵܣܟܵܐܠ ܡܵܓ݂ܝܼܣܝܵܐܢ: ܘܫܲܗܲܕ ܚܘܼܪܝܼ: ܘܣܝܼܒܝܼܠ ܕܝܼܠܵܝܬܲܪ (KTO) ܒܥܘܼܕܪܵܢܵܐ ܕܡܝܼܪܘܿ ܚܘܼܕܲܝܕܵܐ ݂

ܕܘܼܟܵܐ:

ܢܵܦܹܠ ܩܸܢܛܪܘܿܢ ܪܘܼܚܵܢܵܝܵܐ ܕܠܵܠܸܫ ܕܚܵܒܹܫ ܠܩܲܒ݂ܪܵܐ ܕܫܹܝܟ݂ ܥܵܐܕܝܼ ܥܲܠ ܣܸܪܛܵܐ ܕ 4 18 46 ݂ 36 ܓܲܪܒܝܵܐܝܼܬ: ܘܥܲܠ ܣܸܪܛܵܐ ܕ 8 09 18 ݂ 43 ܡܲܕܢܚܵܐܝܼܬ: ܘܥܲܠ ܪܵܡܘܼܬܐ ܕ(861) ܡܝܼܬܖܹ̈ܐ ܡܼܢ ܫܲܘܝܘܼܬ݂ ܫܸܛܚܵܐ ܕܝܲܡܵܐ ܓܲܘ ܚܕܵܐ ܦܢܝܼܬܐ ܕܥܵܒܹ̈ܐ (الغابات) ܛܘܼܖ̈ܵܝܹܐ ܕܢܵܦܠܝܼ ܥܲܠ ܣܸܦܬܐ ܕܟܘܼܪܕܸܣܬܵܐܢ ܕܥܝܼܪܵܐܩ ݂

ܢܵܦܠܵܐ ܠܵܠܸܫ ܕܩܘܼܢܛܪܸܢܬܐ ܝܠܵܗ̇ ܚܕܲܪ ܩܲܒ݂ܪܵܐ ܕܫܹܝܟ݂ ܥܵܐܕܝܼ ܥܲܠ ܒܘܼܥܕܵܐ ܕ(10) ܟܠܡ ܠܬܲܝܡܢܵܐ ܡܲܕܢܚܵܝܵܐ ܕܢܘܼܗܲܕܪܵܐ: ܘ(12) ܟܠܡ ܠܓܲܪܒܝܵܐ ܡܲܥܪܒ݂ܵܝܵܐ ܕܥܲܝܢ ܣܸܦܢܹܐ (ܫܹܝܟ݂ܵܐܢ): ܘ(58) ܟܠܡ ܠܓܲܪܒܝܵܐ ܕܲܡܕܝܼܢ݇ܬܐ ܕܡܲܘܨܸܠ ܪܲܒܬܐ: ܘ(38) ܟܠܡ ܠܡܲܕܢܚܵܐ ܕܐܲܠܩܘܿܫ ݂

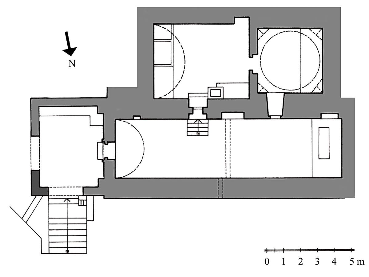
مخطط المجمع الروحي للإزيديين في لاليش
© د. بيرجول أسكيلديز سنغول، جامعة أكسفورد و مونبلييه

ܥܲܠ ܐܝܼܙܝܼܕܵܝܹ̈ܐ ܓܲܘ ܥܝܼܪܵܐܩ:

ܣܘܿܓ݂ܐܵܐ ܕܐܝܼܙܝܼܕܵܝܹ̈ܐ ܟܹܐ ܚܵܝܝܼ ܓܲܘ ܦܢܝܼܬܐ ܕܫܘܼܠܛܵܢܵܐ ܝܵܬܵܝܵܐ ܒܟܘܼܪܕܸܣܬܵܐܢ ܕܥܝܼܪܵܐܩ: ܘܫܸܛܚܵܐ ܕܢܝܼܢܘܹܐ: ܕܦܵܐܹܫ ܚܫܝܼܒ݂ܵܐ ܕܲܪܓܘܼܫܬܲܝܗܝ ܓ̰ܝܘܿܓ݂ܪܵܦܵܝܬܐ: ܘܐܝܼܬ ܐܵܦ ܓܲܘ ܬܘܼܪܟܝܼܵܐ ܘܣܘܼܪܝܼܵܐ ܘܩܘܿܩܵܙܝܵܐ: ܘܲܦܪܝܼܫܵܐܝܼܬ ܓܲܘ ܐܲܪܡܝܼܢܝܵܐ ܘܓ̰ܘܿܪܓ̰ܝܵܐ ݂ ܓܵܘܵܢܵܐܝܼܬ ܟܹܐ ܦܵܝܫܝ ܚܫܝܼܒܹ̈ܐ ܩܘܼܖ̈ܕܵܝܹܐ ܠܵܐ ܡܲܫܠܡܵܢܹ̈ܐ: ܐܝܼܢܵܐ ܐܵܗܵܐ ܚܲܕ ܦܘܼܫܵܩܵܐ ܝܠܹܗ ܠܵܐ ܩܲܛܝܼܢܵܐ: ܐܸܢ ܬܵܟܠܲܚ ܥܲܠ ܫܸܪܫܲܝܗܝ ܫܘܿܥܝܼܬܵܝܵܐ (اسطوري) ݂ ܘܪܵܒܵܐ ܓܵܗܹ̈ܐ ܟܹܐ ܦܵܝܫܝܼ ܡܚܲܝܒܹ̈ܐ (متهمين) ܒܥܲܒܝܼܕܘܼܬܐ ܘܣܵܓ݂ܘܿܕܘܼܬ݂ܐ ܠܣܵܛܵܢܵܐ ܒܥܸܠܬܐ ܕܲܥܝܵܕܲܝܗܝ: ܘܥܲܣܩܵܐ ܝܠܵܗ̇ ܡܬܲܚܘܿܒܹܐ ܠܫܸܪܫܵܐ ܕܐܝܼܙܝܼܕܵܝܹ̈ܐ: ܘܬܲܫܥܝܼܬܲܝܗܝ ܘܐܵܦ ܡܸܢܝܵܢܲܝܗܝ ݂ ܦܝܼܫܠܗ݇ܘܿܢ ܡܘܼܗܡܝܼܹ̈ܐ ܒܝܲܕ ܫܘܼܠܛܵܢܹ̈ܐ ܕܥܝܼܪܵܐܩ ܠܕܲܪܓ݂ܵܐ ܕܲܣܪܵܒ݂ܬܐ ܕܐܝܼܬܘܼܬܲܝܗܝ ݂

ܡܼܢ ܩܕܵܡ ܫܲܢ݇ܬܐ ܕ2003: ܡܸܢܝܵܢܲܝܗܝ ܪܘܼܫܡܵܝܵܐ ܓܲܘ ܒܲܓ݂ܕܵܕ ܡܵܛܹܐ ܗ݇ܘܵܐ ܠܚܲܕܟܡܵܐ ܐܲܠܦܹ̈ܐ: ܐܸܠܵܐ ܒܲܫܪܵܪܵܐ ܦܵܠܛܝܼ ܗ݇ܘܵܘ ܚܲܕܟܡܵܐ ܡܵܐ̈ܐܵܬܐ ܕܐܲܠܦܹ̈ܐ ݂ ܐܲܝܟܲܢ̈ܘܵܬܐ ܕܐܲܒܝܼܕܘܼܬܲܝܗܝ ܟܢܘܼܫܝܵܝܬܐ ܩܵܐܹܡ ܝܗ݇ܘܵܐ ܣܘܼܥܪܵܢܵܐܝܼܬ: ܐܵܦ ܡܼܢ ܩܕܵܡ ܢܚܵܪܲܝܗܝ ܘܲܚܛܵܦܲܝܗܝ ܒܝܲܕ (ܕܵܥܹܫ) ܒܝܲܪܚܵܐ ܕܐܵܒ ܫܲܢ݇ܬܐ ܕ2014 ܓܲܘ ܛܘܼܖ̈ܵܢܹܐ ܕ(ܫܸܢܓܲܪ: ܣܸܢܓ̰ܵܐܪ) ܒܗܹܘܦܲܪܟܝܼܵܐ ܕܢܝܼܢܘܹܐ ݂

ܐܵܦܸܢ ܕܦܝܼܫܠܵܗ̇ ܡܚܘܼܪܪܲܬܐ (ܫܸܢܓܲܪ) ܒܬܸܫܪܝܼܢ ܬܪܲܝܵܢܵܐ ܫܲܢ݇ܬܐ ܕ2017 ܒܝܲܕ ܚܲܝܠܵܘܵܬ̈ܐ ܥܝܼܖ̈ܵܩܵܝܹܐ ܘܲܟܢܘܼܫܵܬ̈ܐ ܡܸܬܚܲܝܕܵܢܝܵܬ݂ܐ ܕܣܲܩܘܼܒ݂ܠܵܝܘܼܬܐ (المقاومة): ܐܸܠܵܐ ܚܲܕ ܚܘܼܫܒܵܢܵܐ ܟܲܒܝܼܪܵܐ ܡܼܢ ܐܝܼܙܝܼܓܕܵܝܹ̈ܐ ܥܝܼܖ̈ܵܩܵܝܹܐ: ܡܵܛܹܐ ܡܸܢܝܵܢܲܝܗܝ ܒܲܝܢܵܬ݂ 500 ܠ 60000 ܐܲܠܦܹ̈ܐ: ܦܵܝܫܝܼ ܚܫܝܼܒ݂ܹ̈ܐ ܐܲܘ ܡܸܢܝܹ̈ܐ ܡܼܢ ܖ̈ܲܚܝܼܩܹܐ (النازحين) ݂ ܪܕܘܼܦܝܵܐ ܕܩܲܡ ܚܵܙܝܼܠܹܗ ܐܝܼܙܝܼܕܵܝܹ̈ܐ ܫܒܸܩܠܹܗ ܕܙܵܕܥܝܼ ܡܼܢ ܕܲܥܬܝܼܕ: ܐܵܦܸܢ ܕܐܝܼܬ ܚܲܕܟܡܵܐ ܩܲܘܠܹ̈ܐ ܢܵܡܘܿܣܵܝܹ̈ܐ ܕܦܝܼܫܠܗ݇ܘܿܢ ܕܟ݂ܝܼܖܹ̈ܐ ܓܲܘ ܢܵܡܘܿܣܵܐ ܕܥܝܼܪܵܐܩ ܒܫܲܢ݇ܬܐ ܕ2005 ݂

خريطة المناطق والمدن والقرى الإيزيدية شمال كردستان العراق
© د. بيرجول أسكيلديز سنغول، جامعة أكسفورد

ܫܸܪܫܵܝܘܼܬܐ ܩܠܹܝܡܵܝܬܐ ܕܐܝܼܙܝܼܕܵܝܹ̈ܐ:

ܦܝܼܫܠܵܗ̇ ܝܼܠܝܼܕܬܐ ܐܝܼܙܝܼܕܵܝܘܼܬܐ ܓܲܘ ܚܕܵܐ ܦܢܝܼܬܐ ܛܘܼܪܵܝܬܐ: ܐܲܝܟܵܐ ܕܥܵܡܘܿܖ̈ܵܗ̇ ܢܛܝܼܖܹ̈ܐ ܝܗ݇ܘܵܘ ܓܲܘ ܖ̈ܘܼܡܝܵܬܵܗ̇ ܘܓܸܦܵܢܵܗ̇ ݂ ܗܵܕܹܐ ܐܪܥܵܐ ܟܹܐ ܦܵܝܫܵܐ ܚܫܝܼܒ݂ܬܐ ܩܲܕܝܼܫܬܐ ܠܘܵܬܲܝܗܝ: ܘܡܸܬܗܲܘܝܵܢܝܼܬܐ ܝܠܵܗ̇ ܕܦܵܝܫܵܐ ܡܦܲܠܲܓܬܐ ܬܹܒܹܝܠܵܐܝܼܬ ܠܬܲܪܬܹܝܢ ܦܸܢܝܵܬ̈ܐ ܡܸܬܖ̈ܲܫܡܵܢܝܵܬܐ: ܠܡܲܕܢܚܵܐ ܘܲܠܡܲܥܪܒ݂ܵܐ ܕܢܲܗܪܵܐ ܕܕܸܩܠܵܬ: ܡܬܲܚܸܡܠܵܗ̇ ܡܼܢ ܓܹܒܵܐ ܕܡܲܥܪܒ݂ܵܐ (ܫܸܢܓܲܪ) ܘܲܡܕܝܼܢ݇ܬܵܗ̇ ܘܡܵܬܘܵܬܵܗ̇ ܘܟܹܐܦܵܗ̇ ݂ ܠܡܲܕܢܚܵܐ ܐܝܼܬ ܩܸܢܛܪܘܿܢ ܪܘܼܚܵܢܵܝܵܐ ܕ(ܠܵܠܸܫ): ܕܘܵܠܹܐ ܕܦܵܐܹܫ ܡܛܘܼܦܝܵܐ ܐܸܒܹܗ ܚܲܕܟܡܵܐ ܕܘܼܟܵܢܹ̈ܐ ܐܵܢܲܢܩܵܝܹ̈ܐ ܐܲܝܟ݂: ܫܹܝܟ݂ܵܐܢ: ܘܒܘܿܙܵܐܢ: ܘܒܲܥܫܝܼܩܵܐ ܘܒܲܗܙܵܢܹܐ ݂ ܣܘܿܓ݂ܐܵܐ ܕܐܝܼܙܝܼܕܵܝܹ̈ܐ (ܡܸܢܲܝܗܝ ܐܵܦ ܓܲܒ݂ܖ̈ܲܝ ܬܲܘܕܝܼܬܐ) ܝܼܠܲܝܗܝ ܡܼܢ ܗܵܠܹܝܢ ܕܘܼܟܵܢܹ̈ܐ: ܐܵܦܸܢ ܕܡܸܬܗܲܘܝܵܢܬܐ ܝܠܵܗ̇ ܚܙܵܝܬܐ ܕܚܲܕܟܡܵܐ ܟܢܘܼܫܝܹ̈ܐ ܐܝܼܙܝܼܕܵܝܹ̈ܐ ܐ݇ܚܖ̈ܵܢܹܐ ܦܖ̈ܝܼܣܹܐ ܘܲܥܡܝܼܖܹ̈ܐ ܠܒܲܪ ܡܼܢ ܗܵܕܹܐ ܦܢܝܼܬܐ ݂

ܘܓܲܘ ܡܸܬܚܵܐ ܕܪܵܒܵܐ ܕܵܖܹ̈ܐ: ܡܚܘܼܡܹܐ ܠܗ݇ܘܿܢ ܐܝܼܙܝܼܕܵܝܹ̈ܐ ܠܲܥܝܵܕܲܝܗܝ ܘܝܘܼܒܵܠܲܝܗܝ ܒܗܵܢܵܐ ܐܲܬܪܵܐ ܘܥܲܠ ܗܵܕܹܐ ܐܲܪܥܵܐ: ܘܲܚܙܹܐ ܠܵܗ̇ ܗܵܕܹܐ ܦܝܵܫܬܐ ܘܡܲܓܡܲܪܬܐ ܚܲܕ ܡܘܼܪܵܝܵܐ ܩܸܫܝܵܐ ܒܡܲܥܪܒ݂ܵܐ ܕܕܸܩܠܵܬ ܓܲܘ ܦܢܝܼܬܐ ܕ(ܫܸܢܓܲܪ): ܡܼܢ ܒܵܬܲܪ ܨܦܵܚܬܐ ܕ(ܕܵܥܹܫ) ܒܝܲܪܚܵܐ ܕܐܵܒ ܫܲܢ݇ܬܐ ܕ2014 ݂ ܐܲܝܟܵܐ ܕܲܡܗܘܼܕܹܐ ܠܹܗ ܕܲܪܓ݂ܵܐ ܕܲܬܠܵܚܵܐ ܘܲܚܪܵܒ݂ܵܐ ܘܩܸܢܛܵܐ ܕܐܲܒܝܼܕܘܼܬܐ ܟܢܘܼܫܝܵܝܬܐ: ܠܲܡܚܝܼܠܘܼܬܐ ܕܗܵܕܹܐ ܟܢܘܼܫܬܐ ܐ݇ܢܵܫܵܝܬܐ ܓܲܘ ܛܘܼܖ̈ܵܢܹܐ ܕܫܸܢܓܲܪ: ܕܚܲܕ ܝܲܘܡܵܐ ܥܡܝܼܖܹ̈ܐ ܗ݇ܘܵܘ ܒܣܲܓܝܼܐܘܼܬܵܐ ܪܲܒܬܐ ܒܐܝܼܙܝܼܕܵܝܹ̈ܐ ܥܝܼܖ̈ܵܩܵܝܹܐ ݂

أب وطفل ايزيدي في المركز الروحي للإزيديين في لاليش.
حزيران 2018 © باسكال ماغيسيان / ميزوبوتاميا

ܐܲܪܥܵܐ ܘܬܲܫܥܝܼܬܐ ܘܝܵܪܬܘܼܬܐ:

ܡܘܼܢܬܹܐ ܠܗ݇ܘܿܢ ܐܝܼܙܝܼܕܵܝܹ̈ܐ ܥܲܠ ܗܵܕܹܐ ܐܲܪܥܵܐ: ܥܲܠ ܬܪܲܝܗܘܿܢ ܓܹܒܵܢܹ̈ܐ ܕܕܸܩܠܵܬ: ܒܲܢܛܵܪܵܐ ܠܕܝܼܠܵܝܵܬ݂̈ܐ ܐܲܖ̈ܕܸܟ݂ܠܵܝܹܐ ܕܒܸܢܝܵܢܲܝܗܝ ܬܲܘܕܝܼܬܵܢܵܝܹ̈ܐ ܘܲܡܛܲܘܪܵܢܘܼܬܲܝܗܝ: ܕܝܼܠܲܝܗܝ ܕܘܼܟܵܢܹ̈ܐ ܖܹ̈ܫܵܝܹܐ ܠܥܲܒܝܼܕܘܼܬܐ ܕܲܡܗܘܼܡܢܹ̈ܐ ܐܝܼܙܝܼܕܵܝܹ̈ܐ ݂

ܗܵܠܹܝܢ ܒܸܢܝܵܢܹ̈ܐ ܦܖ̈ܝܼܫܹܐ ܝܠܲܝܗܝ ܓܵܘܵܢܵܐܝܼܬ ܠܬܲܠܡܝܼܕܹ̈ܐ ܩܲܕܡܵܝܹ̈ܐ ܠܡܲܛܐܒ݂ܵܢܵܐ (المحسن) ܐܝܼܙܝܼܕܵܝܵܐ ܕܕܵܪܵܐ ܕ(12): ܩܲܫܝܼܫܵܐ (ܫܹܝܟ݂) ܥܵܐܕܝܼ: ܘܦܲܖ̈ܨܘܿܦܹܐ ܕܝܼܩܲܪܬܐ ܕ(ܫܵܡܣܵܢܝܼ): ܘܝܼܩܖ̈ܵܬܐ ܕ(ܗܲܣܲܢ ܡܵܡܵܐܢ): ܘܡܹܝܡܹܐ ܪܝܼܫ: ܘܣܲܝܪܘܵܐܢ: ܝܲܬܝܼܪ ܠܖܹ̈ܫܵܢܹܐ ܬܲܘܕܝܼܬܵܢܵܝܹ̈ܐ ܩܲܕܡܵܝܹ̈ܐ: ܢܵܒ݂ܓܹ̈ܐ ܕܩܲܫܝܼܫܵܐ ܥܵܐܕܝܼ (ܦܲܖ̈ܨܘܿܦܹܐ ܡܼܢ ܝܼܩܲܪܬܐ ܕܥܲܕܢܝܼ): ܘܚܲܕܟܡܵܐ ܢܙܝܼܖܹ̈ܐ ܨܘܿܦܵܝܹ̈ܐ ܐܵܢܲܢܩܵܝܹ̈ܐ ܕܐܝܼܬ ܠܗ݇ܘܿܢ ܡܲܥܒܕܵܢܘܼܬܐ ܓܲܘ ܝܘܼܠܦܵܢܹ̈ܐ ܕܫܹܝܟ݂ ܥܵܐܕܝܼ: ܐܲܝܟ݂ ܥܲܒܕܘܿܠܩܵܕܪ ܐܲܠܓܹܝܠܵܢܝܼ: ܘܐܲܠܗܲܠܵܓ̰: ܘܩܲܕܝܼܒ ܐܲܠܒܵܐܢ (ܩܵܕܝܼ ܒܸܠܒܵܐܢ) ݂

ܘܥܲܡ ܗܵܕܹܐ: ܠܵܐ ܡܵܨܹܝܚ ܕܐܵܡܪܲܚ ܕܐܝܼܙܝܼܕܵܝܘܼܬܐ: ܝܼܠܵܗ̇ ܚܕܵܐ ܬܲܘܕܝܼܬܐ ܕܕܵܥܪܵܐ ܠܕܵܖܹ̈ܐ ܡܸܨܥܵܝܹ̈ܐ ݂ ܒܵܨܘܿܖ̈ܘܵܬܐ ܕܡܲܒܘܼܥܹ̈ܐ ܬܹܐܘܿܠܘܿܓ݂ܵܝܼܵܝܹ̈ܐ ܘܬܲܫܥܝܼܬܵܢܵܝܹ̈ܐ ܕܐܝܼܬ ܬܚܘܿܬ ܐܝܼܕܵܐ: ܐܸܠܵܐ ܣܘܼܥܪܵܢܵܐܝܼܬ ܐܝܼܬ ܒܲܠܩܘܼܒ݂ܠܲܝܗܝ ܝܘܼܒܵܠܹ̈ܐ ܘܫܘܿܥܝܵܬ̈ܐ ܥܲܬܝܼܩܹ̈ܐ: ܘܣܲܓܝܼ ܐܝܼܬܘܼܬܐ ݂ ܘܗܵܕܟ݂ܵܐ: ܚܵܙܝܼ ܐܝܼܙܝܼܕܵܝܹ̈ܐ ܠ(ܢܘܼܚ) ܐܲܝܟ݂ ܚܲܕ ܪܹܫܵܢܵܐ ܡܼܢ ܖܹ̈ܫܵܢܹܐ ܖ̈ܘܼܚܵܢܵܝܹܐ ܝܲܬܝܼܪ ܩܕܝܼܡܵܝܹ̈ܐ ܘܐܵܢܲܢܩܵܝܹ̈ܐ: ܘܚܵܫܒ݂ܝܼ ܕܗܿܘ ܚܝܹܐ ܠܹܗ ܓܲܘ ܒܹܝܬ ܢܲܗܖ̈ܝܼܢ ܥܝܼܪܵܩܵܝܬܐ ܓܲܘ ܥܲܝܢ ܣܸܦܢܹܐ (ܫܹܝܟ݂ܵܐܢ): ܐܲܝܟܵܐ ܕܲܒܢܹܐ ܠܹܗ ܠܲܣܦܝܼܢܬܹܗ ݂ ܡܫܲܪܪܝܼ ܡܬܲܫܥܝܼܬܵܢܹ̈ܐ ܐܝܼܙܝܼܕܵܝܹ̈ܐ ܕ”ܬܲܘܕܝܼܬܐ ܐܝܼܙܝܼܕܵܝܬܐ ܪܵܒܵܐ ܥܲܬܝܼܩܬܐ ܝܠܵܗ̇: ܘܕܵܥܪܵܐ ܬܲܫܥܝܼܬܵܗ̇ ܠܫܲܢ݇ܬܐ ܕ3500 ܡܼܢ ܩܕܵܡ ܡܫܝܼܚܵܐ”[1] ݂

ܐܝܼܙܝܼܕܵܝܹ̈ܐ ܐܝܼܬ ܠܗ݇ܘܿܢ ܕܘܼܟܵܢܹ̈ܐ ܦܖ̈ܝܼܫܹܐ ܠܥܲܒܝܼܕܘܼܬܐ ܘܲܨܠܵܘܵܬܵܐ ܐܲܝܟ݂ ܒܹܝܬ ܩܒܼܘܼܖܹ̈ܐ ܘܩܲܒ݂ܖ̈ܵܘܵܬ݂ܐ (ܡܲܣܥܖܹ̈ܐ): ܚܲܕܟܡܵܐ ܡܸܢܲܝܗܝ ܒܸܫ ܖ̈ܲܒܹܐ ܝܢܵܐ ܡܼܢ ܐ݇ܚܖ̈ܵܢܹܐ (ܚܵܣ ـ ܡܹܝܪ): ܘܟܵܖ̈ܘܿܙܘܵܬܐ ܕܢܘܼܪܵܐ (ܢܝܼܫܵܐܢ): ܒܲܝܬܐ ܕܫܹܝܟ݂ ܐܲܘ ܦܹܝܪ: ܐܝܼܠܵܢܵܐ: ܐܝܼܠܵܢܝܼܬܐ: ܥܵܒ݂ܵܐ ܡܼܢ ܐܝܼܠܵܢܹ̈ܐ ܕܙܲܝܬܐ: ܓܸܫܪܵܐ: ܓܹܐܪܵܐ: ܓܸܦܵܐ: ܟܹܐܦܵܐ ܡܩܲܕܫܵܐ (ܟܝܼܦܹܝܪ): ܥܲܝܢܵܐ ܕܡܲܝܵܐ ( ݂ ݂ ݂ ) ݂ ܗܵܠܹܝܢ ܝܲܕܥܹ̈ܐ (علامات) ܘܗܲܝܟܠܹ̈ܐ ܘܕܘܼܟܵܢܹ̈ܐ ܦܖ̈ܝܼܫܹܐ ܩܵܐ “ܩܲܕܝܼܫܹ̈ܐ” ܐܝܼܙܝܼܕܵܝܹ̈ܐ: ܝܼܠܲܝܗܝ ܚܕܵܐ ܡܢܵܬܐ ܐܵܢܲܢܩܵܝܬܐ ܡܼܢ ܡܲܚܕܘܼܪܵܐ ܡܲܪܕܘܼܬܵܢܵܝܵܐ ܓܲܘ ܦܸܢܝܵܬܐ ܕܐܝܼܙܝܼܕܵܝܹ̈ܐ: ܘܝܼܠܲܝܗܝ ܝܲܕܥܹ̈ܐ ܗܘܼܠܵܢܵܝܹ̈ܐ ܡܸܬܓܲܝܫܵܢܹ̈ܐ ܠܛܲܟ݂ܣܵܐ ܓܵܘܵܢܵܝܵܐ ܕܪܘܼܚܵܢܵܝܘܼܬܐ ܐܝܼܙܝܼܕܵܝܬܐ ݂

ܘܥܲܡ ܗܵܕܹܐ: ܐܝܼܬ ܚܲܕ ܒܹܝܬ ܓܲܘܣܵܐ ܪܹܫܵܝܵܐ ܕܐܵܙܠ݇ܝܼ ܐܸܠܹܗ ܟܠܲܝܗܝ ܐܝܼܙܝܼܕܵܝܹ̈ܐ: ܡܸܢܲܝܗܝ ܐܵܢܝܼ ܕܐܝܼܬ ܒܓܵܠܘܼܬܐ: ܕܝܼܠܹܗ ܪܵܓ݂ܘܿܠܵܐ ܕ(ܠܵܠܸܫ) ܓܲܘ ܟܘܼܪܕܸܣܬܵܐܢ ܕܥܝܼܪܵܐܩ ݂ ܝܼܠܹܗ ܗܿܘ ܒܹܝܬ ܓܲܘܣܵܐ ܝܲܬܝܼܪ ܩܲܕܝܼܫܘܼܬܐ ܩܵܐ ܐܝܼܙܝܼܕܵܝܹ̈ܐ: ܒܗܿܝ ܕܟܹܐ ܢܵܦܹܠ ܓܵܘܹܗ ܚܸܪܡܵܐ (حرم) ܕܫܹܝܟ݂ ܥܵܐܕܝܼ: ܡܬܲܪܨܵܢܵܐ ܪܲܒܵܐ ܕܐܝܼܙܝܼܕܵܝܘܼܬ݂ܐ ܒܕܵܪܵܐ ܕ(12) ݂ ܐܵܗܵܐ ܪܵܓ݂ܘܿܠܵܐ ܘܩܲܒ݂ܖ̈ܵܘܵܬܹܗ ܘܡܲܚܕܘܼܪܹܗ: ܦܵܐܹܫ ܚܫܝܼܒ݂ܵܐ ܩܸܢܛܪܘܿܢ ܕܚܲܝܹ̈ܐ (ܨܘܿܦܵܝܹ̈ܐ) ܐܝܼܙܝܼܕܵܝܹ̈ܐ ݂

ܦܝܼܫܠܗ݇ܘܿܢ ܒܸܢܝܹ̈ܐ ܒܸܢܝܵܢܹ̈ܐ ܕܐܝܼܙܝܼܕܵܝܹ̈ܐ ܒܙܲܒ݂ܢܹ̈ܐ ܡܫܲܚܠܦܹ̈ܐ ݂ ܘܠܲܝܬܝܘܼܬ ܢܸܩܫܹ̈ܐ ܘܡܲܒܘܼܥܹ̈ܐ ܬܲܫܥܝܼܬܵܢܵܝܹ̈ܐ: ܫܒ݂ܵܩܵܐ ܝܠܹܗ ܕܗܵܘܝܵܐ ܥܲܣܩܘܼܬܐ ܠܲܡܬܲܚܘܿܡܹܐ ܬܲܫܥܝܼܬܲܝܗܝ ܒܕܲܩܝܼܩܘܼܬܐ ݂ ܦܘܼܠܚܵܢܹ̈ܐ ܣܸܖ̈ܝܹܐ ܕܚܲܕܟܡܵܐ ܚܘܼܕܵܬܹ̈ܐ ܘܖ̈ܘܼܡܵܡܹܐ ܚܲܕܬܹ̈ܐ ܕܓܲܘ ܒܸܢܝܵܢܵܐ: ܡܲܙܝܘܿܕܹܐ ܝܠܲܝܗܝ ܠܩܸܛܪܵܐ ܘܥܲܣܩܘܼܬܐ ܕܨܒ݂ܘܼܬܐ ݂ ܡܼܢ ܓܹܒܵܐ ܐ݇ܚܪܹܢܵܐ: ܠܵܐ ܝܠܵܗ̇ ܡܲܒܝܘܿܢܹܐ ܕܐܝܼܬ ܚܲܕ ܐܸܣܟܹܝܡܵܐ ܐܲܪܕܸܟ݂ܠܵܝܵܐ ܕܡܵܨܹܐ ܕܪܵܫܹܡ ܠܙܲܒ݂ܢܹ̈ܐ ܡܫܲܚܠܦܹ̈ܐ ܕܬܲܫܥܝܼܬܐ ܐܝܼܙܝܼܕܵܝܬܐ: ܕܲܟܒܲܪ ܡܥܲܕܸܪ ܠܝܼܕܵܥܵܐ ܬܲܫܥܝܼܬܐ ܕܗܵܠܹܝܢ ܒܸܢܝܵܢܹ̈ܐ ݂ ܘܝܲܬܝܼܪ ܥܲܠ ܗܵܕܹܐ: ܦܝܼܫܠܹܗ ܡܘܼܦܠܸܚܵܐ ܝܵܬ݂ ܐܸܣܟܹܝܡܵܐ ܩܦܝܼܣܵܐ ܡܼܢ ܬܲܦܢܟ݂ܵܐ ܡܥܲܝܢܵܐ ܩܵܐ ܪܵܒܵܐ ܓܵܗܹ̈ܐ ܥܲܡ ܥܒ݂ܘܼܪܝܵܐ ܕܕܵܖܹ̈ܐ: ܘܲܠܗܵܫܵܐ ܦܝܵܫܵܐ ܝܠܹܗ ܡܘܼܦܠܸܚܵܐ ݂

_______

[1]  ܫܵܡܘܿ ܩܵܣܹܡ: ܡܦܲܬܫܵܢܵܐ ܕܡܲܕܖ̈ܲܫܝܵܬܐ ܐܝܼܙܝܼܕܵܝܵܬܐ: ܡܸܬܬܕܝܼܠܵܢܵܐ ܝܠܹܗ ܒܬܲܘܕܝܼܬܐ ܘܬܲܫܥܝܼܬܐ ܐܝܼܙܝܼܕܵܝܬܐ: ܪܹܫܵܢܵܐ ܕܲܡܢܵܬܐ ܕܡܲܪܕܘܼܬܐ ܘܝܘܼܕܵܥܵܐ ܓܲܘ ܩܸܢܛܪܘܿܢ ܡܲܪܕܘܼܬܵܢܵܝܵܐ ܘܲܟܢܘܼܫܝܵܝܵܐ ܕ(ܠܵܠܸܫ) ܓܲܘ ܢܘܼܗܲܕܪܵܐ ݂

اثنان من الإيزيديين في المركز الروحي في لاليش.
حزيران 2018 © باسكال ماغيسيان / ميزوبوتاميا

ܚܲܕ ܦܸܣܩܵܐ ܪܘܼܚܵܢܵܝܵܐ ܥܲܠ ܬܹܐܘܿܠܘܿܓ݂ܝܼܵܐ ܐܝܼܙܝܼܕܵܝܵܐ:

ܐܝܼܙܝܼܕܵܝܘܼܬܐ ܝܼܠܵܗ̇ ܬܲܘܕܝܼܬܐ ܕܝܘܼܒܵܠܹ̈ܐ ܘܫܘܼܢܵܝܵܐ ܣܸܦܬܵܢܵܝܵܐ: ܦܫܝܼܛܬܐ ܝܠܵܗ̇ ܘܩܸܛܪܵܢܵܬܐ (معقدة) ܒܥܲܝܢܵܐ ܕܥܸܕܵܢܵܐ ݂ ܦܫܝܼܛܬܐ ܒܗܿܝ ܕܠܵܐ ܚܵܒ݂ܫܵܐ ܚܲܕ ܕܘܿܓ݂ܡܵܐ ܐܵܠܨܵܝܵܐ (ملزم) ݂ ܘܩܸܛܪܵܢܬܵܐ ܒܗܿܝ ܕܠܲܝܬ ܚܲܕ ܟܬܵܒ݂ܵܐ ܬܹܐܘܿܠܘܿܓ݂ܝܼܵܝܵܐ ܐܲܝܟ݂ ܐܸܣܵܐ ܐܸܠܵܗ̇: ܐܲܝܟ݂ ܐܘܿܪܵܝܬܐ ܐܲܘ ܐܹܘܲܢܓܲܠܝܼܘܿܢ ܐܲܘ ܩܘܼܪܐܵܢ ݂ ܐܝܼܙܝܼܕܵܝܹ̈ܐ ܐܝܼܬ ܠܗ݇ܘܿܢ ܬܪܹܝܢ ܟܬܵܒܹ̈ܐ ܩܲܕܝܼܫܹ̈ܐ: “ܟܬܵܒ݂ܵܐ ܕܓܸܠܝܵܢܵܐ: ܐܲܠܓ̰ܠܘܵܐ” ܘ “ܟܬܵܒ݂ܵܐ ܐܘܼܟܵܡܵܐ: ܡܲܨܗܲܦܵܐ ܪܲܫ” ݂

ܐܝܼܙܝܼܕܵܝܘܼܬܐ ܝܼܠܵܗ̇ ܚܕܵܐ ܟܢܘܼܫܬܐ ܬܲܘܕܝܼܬܵܢܵܝܬܐ (ܐܲܬ݂ܪܵܢܵܝܬܐ) ܨܵܪܘܿܡܬܐ (صارمة) ݂ ܒܲܪܢܵܫܵܐ ܟܹܐ ܒܵܪܹܐ ܐܝܼܙܝܼܕܵܝܵܐ ܐܝܼܢܵܐ ܠܵܐ ܡܵܨܹܐ ܕܗܵܙܹܐ ܐܝܼܙܝܼܕܵܝܵܐ: ܥܲܠܗܵܕܹܐ ܠܲܝܬ ܠܗ݇ܘܿܢ ܣܘܼܟܵܠܵܐ ܕܣܘܼܒܵܪܵܐ (ܡܲܫܚܲܕܬܐ) ܓܲܘ ܐܝܼܙܝܼܕܵܝܘܼܬܐ ݂ ܐܝܼܢܵܐ ܠܵܐ ܝܠܲܝܗܝ ܚܕܵܐ ܟܢܘܼܫܬܐ ܫܲܒ݂ܛܵܢܵܝܬܐ ܕܒ݂ܝܼܪܬܵܐ ܐܲܘ ܣܟܝܼܪܬܐ: ܟܠ ܒܵܨܘܿܝܵܐ ܕܒܵܥܹܐ ܕܵܪܹܫ ܥܲܠ ܠܸܫܵܢܵܐ ܐܝܼܙܝܼܕܵܝܵܐ: ܒܸܕ ܗܵܘܹܐ ܡܩܲܒܠܐ ܒܫܲܝܢܵܐ ܡܼܢ ܟܢܘܼܫܝܵܐ ܕܐܝܼܙܝܼܕܵܝܹ̈ܐ ܘܡܼܢ ܓܲܒ݂ܖ̈ܲܝ ܬܲܘܕܝܼܬܐ[1] ݂

ܐܝܼܙܝܼܕܵܝܘܼܬܐ ܝܼܠܵܗ̇ ܬܲܘܕܝܼܬܐ ܠܚܘܿܕܵܝܘܼܬܐ ܘܡܸܬܚܲܝܕܵܢܝܼܬܐ: ܐܲܠܵܗܵܐ ܝܼܚܝܼܕܵܝܵܐ ܝܠܹܗ: ܘܝܼܠܹܗ ܒܵܪܘܿܝܵܐ ܕܥܵܠܡܵܐ ܘܚܲܝܹ̈ܐ: ܘܟܹܐ ܡܫܲܘܬܸܦܝܼ ܒܐܵܗܵܐ ܣܘܼܟܵܠܵܐ ܥܲܡ ܝܗܘܼܕܵܝܘܼܬܐ ܘܲܡܫܝܼܚܵܝܘܼܬܐ ܘܡܲܫܠܡܵܢܘܼܬܐ ܘܐܵܦ ܙܲܪܕܲܫܬܵܝܘܼܬܐ[2] ݂

ܐܲܠܵܗܵܐ ܢܘܼܗܪܵܐ ܝܠܹܗ: ܝܼܠܹܗ ܐܲܝܟ݂ ܫܸܡܫܵܐ ܨܵܡܘܿܚܬܐ ܥܲܠ ܐܲܪܥܵܐ ݂ ܠܗܵܕܹܐ ܥܸܠܬܐ ܟܹܐ ܡܨܲܠܝܼ ܐܝܼܙܝܼܕܵܝܹ̈ܐ ܒܛܘܼܟܵܣܵܐ ܥܝܵܕܵܝܵܐ ܠܨܲܘܒܵܐ ܕܫܸܡܫܵܐ: ܘܒܵܐܗܵܐ ܡܸܢܕܝܼ ܟܹܐ ܕܵܡܝܼ ܠܒܹܝܬ ܢܲܗܖ̈ܝܼܢܵܝܹܐ ܘܲܠܙܲܖ̈ܕܲܫܬܵܝܹܐ ܦܵܖ̈ܣܵܝܹܐ ݂

ܐܲܠܵܗܵܐ ܛܵܒ݂ܵܐ ܝܠܹܗ ܘܲܕܠܵܐ ܬܚܘܼܡܹ̈ܐ: ܠܗܵܕܲܟ݂ ܟܹܐ ܡܨܲܠܝܼ ܐܝܼܙܝܼܕܵܝܹ̈ܐ ܒܲܫܒ݂ܝܼܠܵܐ ܡܲܪܗܵܛܵܝܵܐ: ܡܸܛܠ ܥܵܠܡܵܐ ܩܲܕܡܵܐܝܼܬ ܘܚܲܪܬܐ ܡܸܛܠ ܝܵܬܲܝܗܝ ݂

ܐܲܠܵܗܵܐ ܐܝܼܬ ܒܟܠ ܡܸܢܕܝܼ ܘܲܒܟܠ ܕܘܼܟܵܐ ݂ ܐܝܼܙܝܼܕܵܝܘܼܬܐ ܝܼܠܵܗ̇ ܦܲܓ݂ܪܵܢܵܐܝܼܬ ܘܪܘܼܚܵܢܵܐܝܼܬ ܚܲܕ ܥܲܡ ܟܠܵܗ̇ ܒܪܝܼܬܐ: ܥܵܠܡܵܢܵܝܬܐ: ܘܒܲܪܢܵܫܵܝܬܐ: ܘܚܲܝܘܬܵܢܵܝܬܐ: ܘܝܵܥܝܼܬܵܢܵܝܬܐ: ܘܚܸܦܪܵܝܬܐ (معدنية): ܘܲܠܗܵܕܹܐ ܥܸܠܬܐ ܟܹܐ ܡܩܲܕܫܝܼ ܐܝܼܙܝܼܕܵܝܹ̈ܐ ܠܐܝܼܠܵܢܹ̈ܐ ܕܙܲܝܬܐ ܘܚܵܫܒ݂ܝܼ ܕܙܲܝܬܵܗ̇ ܐܵܢܲܢܩܵܝܵܐ ܝܠܹܗ ܠܢܘܼܪܵܐ ܩܲܕܝܼܫܵܐ ݂ ܘܐܲܟ݂ܘܵܬܹܗ: ܛܵܘܣܹܐ ܡܲܠܲܟ: ܝܼܠܹܗ ܗܿܘ ܡܲܠܲܐܟ݂ܐ ܝܲܬܝܼܪ ܐܵܢܲܢܩܵܝܵܐ ܡܼܢ ܫܲܒ݂ܥܵܐ ܡܲܠܲܐܟܹ̈ܐ ܕܟܹܐ ܡܛܲܦܣܝܼ ܠܐܲܠܵܗܵܐ ܥܲܠ ܐܲܪܥܵܐ ݂

ܟܹܐ ܡܗܲܝܡܢܝܼ ܐܝܼܙܝܼܕܵܝܹ̈ܐ ܒܲܕܝܵܢܬܐ ܕܢܲܦ̮ܫܵܬܵܐ: ܘܒܲܕܝܵܢܬܐ ܐ݇ܚܵܪܵܝܬܐ ݂ ܘܥܲܡ ܗܵܕܹܐ: ܟܹܐ ܚܵܠܦܝܼ ܡܼܢ ܡܫܝܼܚܵܝܘܼܬܐ ܓܲܘ ܗܲܝܡܵܢܘܼܬܲܝܗܝ ܒܫܘܼܢܵܝ ܢܲܦ̮ܫܵܬܐ (التقمص) ݂ ܦܵܝܫܝܼ ܡܛܘܼܡܖܹ̈ܐ ܡܝܼܬܵܢܹ̈ܐ: ܐܝܼܢܵܐ ܢܲܦ̮ܫܵܬܵܐ ܟܹܐ ܦܵܝܫܝܼ ܕܝܼܢܹ̈ܐ ܠܦܘܼܬ݂ ܛܵܒ݂ܬܐ ܘܒܝܼܫܬܐ ܕܩܲܡ ܥܵܒ݂ܕܝܼܠܵܗ̇ ݂ ܡܸܬܗܲܘܝܵܢܝܼܬܐ ܝܠܵܗ̇ ܕܦܵܝܫܝܼ ܖ̈ܘܼܚܵܬܹܐ ܕܸܟ݂ܝܹ̈ܐ ܐܝܼܬܝܹ̈ܐ ܕܢܘܼܗܪܵܐ: ܘܦܵܝܫܝܼ ܡܓܘܼܫܡܸܢܹ̈ܐ ܢܲܦ̮ܫܵܬܵܐ ܛܲܡܐܹ̈ܐ (ܫܸܚܬܵܢܹ̈ܐ) ܒܲܕܡܘܼܬ݂ ܐܸܣܟܹܝܡܹ̈ܐ ܐ݇ܢܵܫܵܝܹ̈ܐ ܐܲܘ ܚܲܝܘܿܬ݂ܵܢܵܝܹ̈ܐ ܫܸܚܬܵܢܹ̈ܐ ݂

_______

[1] ܓ̰ܵܐܢ ܦܘܿܠ ܪܘܿ: ܡܝܼܬ ܠܹܗ ܒܲܚܙܝܼܪܵܢ 2009: ܘܝܼܠܹܗ ܚܲܕ ܒܵܨܘܿܝܵܐ ܩܕܝܼܡܵܐ (سابق) ܓܲܘ ܩܸܢܛܪܘܿܢ ܐܲܬܪܵܢܵܝܵܐ ܠܲܕܖ̈ܵܫܹܐ ܐܵܐܲܖ̈ܵܝܹܐ: ܘܲܡܢܵܬܵܐ ܕܐܲܡܢܵܐ ܐܸܣܠܵܡܵܝܵܐ ܓܲܘ ܡܲܕܪܲܫܬܐ ܕ(ܠܘܿܦܲܪ): ܚܵܫܹܒܠܵܗ̇ ܐܝܼܙܝܼܕܵܝܘܼܬܐ ܚܕܵܐ “ܬܲܘܕܝܼܬܐ ܦܪܝܼܫܬܐ: ܘܐܝܼܬ ܠܹܗ ܣܘܼܙܓܵܪܵܐ ܓܸܠܝܵܐ ܠܝܘܼܒܵܠܹ̈ܐ ܥܲܡܡܵܝܹ̈ܐ ܘܕܘܼܟ݂ܖ̈ܵܢܹܐ ܕܕܘܿܓ݂ܡܹ̈ܐ ܘܬܲܘܕܝܵܬܐ ܖ̈ܲܒܹܐ” ݂ ܠܵܐ ܟܓ݂ܪܘܿ: ܟܠܹܝܪ ܠܝܼܣܓ݂ܝܼܪܬܲܝܢ: 26 ܢܝܼܣܵܢ 2010 ݂

[2]  ܒܪܹܐ ܠܵܗ̇ ܙܲܪܕܲܫܬܵܝܘܼܬܐ ܓܲܘ ܐܲܬܪܵܐ ܕܦܵܪܹܣ: ܡܫܘܼܬܐܸܣܵܐ ܠܹܗ ܙܵܪܵܐ ܐܵܬ݂ܘܿܣܬܪܵܐ (ܙܲܪܕܲܫܬ: ܙܪܵܕܲܫܬ): ܒܐܲܠܦܘܼܬܐ ܩܲܕܡܵܝܬܐ ܡܼܢ ܩܕܵܡ ܡܫܝܼܚܵܐ: ܘܝܼܠܵܗ̇ ܬܲܘܕܝܼܬܐ ܠܚܘܿܕܵܝܬܐ ܘܟܹܐ ܡܲܘܕܝܵܐ ܒܐܵܗܘܿܪܵܐ ܡܵܙܕܵܐ ܕܝܼܠܹܗ ܚܲܕ ܐܲܠܵܗܵܐ ܝܼܚܝܼܕܵܝܵܐ ݂ ܙܲܪܕܲܫܬܵܝܘܼܬܐ ܒܐܵܗܵܐ ܣܘܼܟܵܠܵܐ ܟܹܐ ܚܵܠܦܵܐ ܐܸܣܵܐܝܼܬ ܘܐܘܼܣܝܵܐܝܼܬ ܒܦܘܼܚܵܡܵܐ ܥܲܡ ܡܵܙܕܵܝܘܼܬܐ ܕܲܫܩܸܠܠܵܗ̇ ܘܲܦܠܸܛܠܵܗ̇ ܡܸܢܵܗ̇ ݂ ܡܵܙܕܵܝܘܼܬܐ ܚܵܫܒ݂ܵܐ ܕܐܵܗܘܿܪܵܐ ܡܵܙܕܵܐ: ܝܼܠܹܗ ܐܲܠܵܗܵܐ ܪܹܫܵܝܵܐ ܐܝܼܢܵܐ ܠܵܐ ܝܠܹܗ ܐܲܠܵܗܵܐ ܝܼܚܝܼܕܵܝܵܐ ݂ ܦܪܸܣܠܵܗ̇ ܗܵܕܹܐ ܬܲܘܕܝܼܬܐ ܦܵܪܣܵܝܬܐ ܠܗܲܠ ܗܸܢܕܘܿ ܒܐܘܼܪܚܵܐܕܦܘܼܪܩܵܢܵܐ ݂

رسم لمزار الإيزيديين في لاليش من الجنوب
© في "النساطرة وطقوسهم" ، القس جورج بيرسي بادجر ، لندن ، جوزيف ماسترز ، 1852

ܦܘܼܠܚܵܢܹ̈ܐ ܕܥܲܒܝܼܕܘܼܬܐ ܐܝܼܙܝܼܕܵܝܬܐ:

ܦܘܼܠܚܵܢܹ̈ܐ ܕܥܲܒܝܼܕܘܼܬܐ ܐܝܼܙܝܼܕܵܝܬܐ ܠܵܐ ܫܵܠܡܝܼ ܠ “ܛܲܟ݂ܣܹ̈ܐ” ܠܝܼܬܘܿܖ̈ܓ̰ܵܝܹܐ ܨܵܖ̈ܘܿܡܹܐ: ܐܸܠܵܐ ܝܼܠܲܝܗܝ ܚܲܕ ܟܘܼܢܵܫܵܐ ܡܼܢ ܝܘܼܒܵܠܹ̈ܐ ܘܲܥܝܵܕܹ̈ܐ ܛܲܟ݂ܣܵܝܹ̈ܐ: ܘܦܘܼܠܚܵܢܹ̈ܐ ܕܸܒ݂ܚܵܝܹ̈ܐ ܡܫܘܼܢܝܹ̈ܐ ܣܸܦܬܵܢܵܐܝܼܬ ܡܼܢ ܕܵܪܵܐ ܠܕܵܪܵܐ ݂

ܓܵܘܵܢܵܐܝܼܬ ܟܹܐ ܡܨܲܠܝܼ ܐܝܼܙܝܼܕܵܢܵܝܹ̈ܐ ܒܲܙܢܵܐ ܚܕܵܢܵܝܵܐ: ܘܐܵܦ ܟܹܐ ܟܵܢܫܝܼ ܩܕܵܡܵܐ ܕܡܲܥܒܵܕܲܝܗܝ ܘܡܲܣܥܖ̈ܲܝܗܝ ܠܲܨܝܵܬܵܐ ܠܐܵܡܘܿܪܵܐ (ܩܲܘܵܐܠ): ܡܘܿܣܝܼܩܵܖܹ̈ܐ ܘܙܲܡܵܖܹ̈ܐ ܘܩܲܝܘܼܡܹ̈ܐ ܥܲܠ ܥܲܒܝܼܕܘܼܬܐ ܐܝܼܙܝܼܕܵܝܬܐ: ܘܟܹܐ ܦܵܝܫܝܼ ܡܫܘܼܢܝܹ̈ܐ ܐܲܢܲܝ ܝܲܕܥܵܬܐ ܘܦܘܼܠܚܵܢܹ̈ܐ ܡܼܢ ܒܵܒܵܐ ܠܲܒܪܘܿܢܵܐ ݂

ܐܲܡܝܼܢܵܐܝܼܬ ܨܠܘܿܬܐ ܝܲܘܡܵܝܬܐ ܗܵܘܝܵܐ ܠܨܘܿܒ ܫܸܡܫܵܐ: ܢܘܼܗܪܵܐ ܕܐܲܠܵܗܵܐ (ܚܘܼܕܵܐ: ܚܘܼܕܹܐ): ܘܗܵܝ ܠܵܐ ܝܠܵܗ̇ ܘܵܠܝܼܬܐ ܘܠܵܐ ܡܲܝܕܸܥܵܐ ܕܗܿܘ ܦܲܪܨܘܿܦܵܐ ܝܼܠܹܗ “ܐܝܼܙܝܼܕܵܝܵܐ ܛܵܒ݂ܵܐ” ݂ ܘܥܲܡ ܗܵܕܹܐ: ܦܲܖ̈ܨܘܿܦܹܐ ܡܗܘܼܡܢܹ̈ܐ ܘܣܵܒܹ̈ܐ ܟܹܐ ܡܨܲܠܝܼ ܒܲܡܛܲܟ݂ܣܘܼܬܐ: ܠܗܲܠ ܚܲܡܫܵܐ ܓܵܗܹ̈ܐ ܒܝܲܘܡܵܐ ݂

ܢܫܵܩܬܐ ܕܕܘܼܟܵܢܹ̈ܐ ܩܲܕܝܼܫܹ̈ܐ: ܘܲܢܫܵܩܬܐ ܕܐܝܼܕܵܬܐ ܕܩܲܕܝܼܫܹ̈ܐ ܢܵܟ݂ܘܿܦܹ̈ܐ (الورعة): ܘܡܲܩܪܲܒ݂ܬܐ ܕܫܘܼܟܵܢܹ̈ܐ ܩܵܐ ܦܲܖ̈ܨܘܿܦܹܐ ܡܗܘܼܡܢܹ̈ܐ: ܘܲܕܒ݂ܵܚܬܐ ܒܚܲܝܘܵܬ̈ܐ: ܘܲܩܛܵܪܬܐ ܕܦܲܖ̈ܟ̰ܐ ܘܲܫܪܵܝܬܲܝܗܝ ܡܼܢ ܥܲܠ ܐܝܼܠܵܢܹ̈ܐ ܕܣܲܒ݂ܖܹ̈ܐ ܘܒܵܥܘܵܬ݂ܐ: ܟܠܲܝܗܝ ܝܼܠܲܝܗܝ ܢܝܼܫܵܢܩܹ̈ܐ ܕܐܝܼܩܵܪܵܐ ܘܫܲܪܝܼܪܘܼܬܐ ܘܗܲܝܡܵܢܘܼܬܐ ݂

ܝܲܘܡܵܐ ܕܐܲܪܒܲܥܒܫܲܒܵܐ ܝܼܠܹܗ ܗܿܘ ܝܲܘܡܵܐ ܝܲܬܝܼܪ ܐܵܢܲܢܩܵܝܵܐ ܡܼܢ ܒܲܝܢܵܬ݂ ܝܲܘܡܵܢܹ̈ܐ ܕܫܵܒ݂ܘܿܥܵܐ ݂ ܝܼܠܹܗ ܒܲܕܡܘܼܬ݂ ܝܲܘܡܵܐ ܕܚܲܕܒܫܲܒܵܐ ܠܘܵܬ݂ ܡܫܝܼܚܵܝܹ̈ܐ: ܐܲܘ ܝܲܘܡܵܐ ܕܫܲܒܬܐ ܠܘܵܬ ܝܗܘܼܕܵܝܹ̈ܐ: ܐܲܘ ܥܪܘܼܒ݂ܬܐ ܠܘܵܬ݂ ܡܲܫܠܡܵܢܹ̈ܐ ݂ ܒܝܲܘܡܲܝ̈ ܐܲܪܒܲܥܒܫܲܒܵܐ: ܦܵܝܫܝܼ ܡܛܲܟܣܹ̈ܐ ܙܘܼܝܵܚܹ̈ܐ ܫܵܒ݂ܘܿܥܵܝܹ̈ܐ ܖ̈ܲܒܹܐ ܕܡܲܠܗܝܼ ܓܵܘܲܝܗܝ ܓܲܒ݂ܖ̈ܲܝ ܬܲܘܕܝܼܬܐ ܐܝܼܙܝܼܕܵܝܹ̈ܐ ܠܢܘܼܪܵܐ ܩܲܕܝܼܫܵܐ ܥܲܠ ܩܲܒ݂ܖ̈ܵܘܵܬܐ ݂

ܐܝܼܬ ܐܲܪܒܥܵܐ ܥܲܕܥܹܐܕܹ̈ܐ ܫܲܢ݇ܬܵܝܹ̈ܐ ܖ̈ܲܒܹܐ ܓܲܘ ܣܘܼܪܓܵܕܵܐ ܬܲܘܕܝܼܬܵܢܵܝܵܐ ܐܝܼܙܝܼܕܢܵܝܵܐ ݂ ܗܿܘ ܩܲܕܡܵܝܵܐ ܝܼܠܹܗ ܫܲܢ݇ܬܐ ܚܕܲܬܐ (ܣܲܪܝܼ ܨܵܠ): ܒܝܲܘܡܵܐ ܩܲܕܡܵܝܵܐ ܡܼܢ ܝܲܪܚܵܐ ܕܢܝܼܣܵܢ ݂ ܪܵܡܹܙ ܗܵܢܵܐ ܥܹܐܕܵܐ ܠܲܒܪܵܝܬܐ ܕܚܲܝܹ̈ܐ ܡܼܢ ܫܓ݂ܘܼܫܝܹ̈ܐ ܘܒܘܼܠܒܵܠܹ̈ܐ ܩܲܕܡܵܝܹ̈ܐ: ܘܐܬܵܝܬܐ ܕ(ܛܲܘܣܹܐ ܡܲܠܲܟ) ݂ ܒܐܵܗܵܐ ܦܘܼܪܣܵܐ: ܦܵܝܫܝܼ ܫܠܝܼܩܹ̈ܐ ܒܸܥܹ̈ܐ: ܘܝܼܠܹܗ ܚܲܕ ܪܸܡܙܵܐ ܠܐܲܪܥܵܐ ܫܸܪܫܵܝܬܐ ܣܦܝܼܩܬܐ ܡܼܢ ܚܲܝܹ̈ܐ ݂ ܘܦܵܝܫܝܼ ܫܚܝܼܩܹ̈ܐ (ܓܖ̈ܝܼܣܹܐ) ܚܲܕܟܡܵܐ ܡܼܢ ܗܵܠܹܝܢ ܒܸܥܹ̈ܐ ܥܲܠ ܬܲܖ̈ܥܵܢܹܐ ܕܒܵܬܹ̈ܐ ܘܩܲܒ݂ܖ̈ܵܘܵܬܐ: ܘܚܒ݂ܝܼܟܹ̈ܐ (ܚܒ݂ܝܼܛܹ̈ܐ) ܒܗܲܒܵܒܹ̈ܐ ܙܥܘܿܖܹ̈ܐ ܣܡܘܿܩ ܓܲܘܢܹ̈ܐ ݂

ܥܲܕܥܹܐܕܵܐ ܫܲܢ݇ܬܵܝܵܐ ܐ݇ܚܹܪ݇ܢܵܐ: ܝܼܠܹܗ ܥܲܕܥܹܐܕܵܐ ܕܲܪܒ݂ܝܼܥܵܐ ܐܲܘ ܒܹܝܬ ܢܝܼܣܵܢܹ̈ܐ (ܐܲܠܛܲܘܘܵܦ): ܘܦܵܐܹܫ ܡܙܲܝܚܵܐ ܒܹܗ ܒܲܝܢܲܝ 12 ܘ 20 ܒܢܝܼܣܵܢ ݂ ܘܲܒܫܘܼܠܵܡܵܐ: ܦܵܐܹܫ ܥܒ݂ܝܼܕܵܐ ܚܲܓܵܐ (الحج) ܠܩܲܒ݂ܪܵܐ ܕܫܹܝܟ݂ ܥܵܐܕܝܼ ܓܲܘ ܡܲܣܥܪܵܐ (مزار) ܕܠܵܠܸܫ: ܒܝܲܘܡܵܐ ܫܬܝܼܬܵܝܵܐ ܡܼܢ ܝܲܪܚܵܐ ܕܬܸܫܪܝܼܢ ܩܲܕܡܵܝܵܐ ݂

رسم لسور مزار الإيزيديين في لاليش
© في "النساطرة وطقوسهم" ، القس جورج بيرسي بادجر ، لندن ، جوزيف ماسترز ، 1852

ܩܲܒ݂ܪܵܐ ܡܵܪܹܐ ܩܘܼܒܬܐ ܢܘܼܪܵܢܵܝܬܐ: ܛܘܼܦ̮ܣܵܐ ܠܡܲܚܵܪܘܼܬܐ ܐܝܼܙܝܼܕܵܝܬܐ

ܩܲܒ݂ܪܵܐ ܢܘܼܪܵܢܵܝܵܐ ܕܝܼܠܹܗ ܒܲܕܡܘܼܬ݂ ܚܕܵܐ ܩܘܼܒܬܐ: ܝܼܠܹܗ ܚܲܕ ܨܲܠܡܵܐ ܪܸܡܙܵܝܵܐ ܠܐܲܡܢܵܐ ܩܲܕܝܼܫܵܐ ܐܝܼܙܝܼܕܵܝܵܐ ݂ ܡܼܢ ܓܹܒܵܐ ܐܲܪܕܸܟ݂ܠܵܝܵܐ ܘܨܘܼܒܵܬܵܝܵܐ (زخرفي): ܬܵܟܹܠ ܐܵܗܵܐ ܐܵܕܫܵܐ ܡܼܢ ܒܸܢܝܵܢܹ̈ܐ ܥܲܠ ܚܲܕ ܐܸܣܵܐ ܡܩܲܦܣܵܐ (مكعب): ܚܵܒܹܫ ܥܲܠ ܒܹܝܬ ܩܒ݂ܘܼܪܵܐ ܐܲܘ ܢܲܘܣܵܐ (ܬܵܒܘܿܬ): ܡܟܘܼܣܝܵܐ ܒܚܲܕ ܟܣܵܝܵܐ ܕܛܵܥܹܢ ܠܲܚܕܵܐ ܡܲܢܕܘܼܪܬܐ: ܘܐܝܼܬ ܚܕܵܐ ܩܘܼܒܬܐ ܢܘܼܪܵܢܵܝܬܐ ܒܐܸܣܟܹܝܡܵܐ: ܘܡܵܪܲܬ ܖܹ̈ܫܵܢܹܐ ܐܲܘ ܣܸܦܵܬ̈ܐ ܡܫܲܚܠܦܹ̈ܐ ݂ ܪܵܡܙܵܐ ܗܵܕܹܐ ܩܘܼܒܬܐ ܠܙܲܗܪܝܼܖܹ̈ܐ ܕܫܸܡܫܵܐ ܕܒܲܗܪܸܢܝܼ ܠܐܲܪܥܵܐ ܘܒܲܪܢܵܫܘܼܬܐ ݂

ܪܵܒܵܐ ܓܵܗܹ̈ܐ ܟܹܐ ܗܵܘܝܵܐ ܡܢܵܬܐ ܓܵܘܵܝܬܐ ܕܩܲܒ݂ܪܵܐ ܐܝܼܙܝܼܕܵܝܵܐ ܡܼܢ ܚܲܕ ܐܵܘܵܢܵܐ ܦܪܝܼܫܵܐ: ܐܲܝܟܵܐ ܕܐܝܼܬ ܢܲܘܣܵܐ ܡܟܘܼܣܝܵܐ ܒܫܹܐܪܵܐ (الحرير) ݂ ܘܐܵܦ ܐܝܼܬ ܚܕܵܐ ܟܲܘܬܐ ܚܦܝܼܪܬܐ ܓܲܘ ܓܘܼܕܵܐ ܠܡܲܩܘܿܕܹܐ ܒܸܣܡܹ̈ܐ: ܘܡܲܠܗܲܝܬܐ ܕܢܘܼܪܵܐ ܩܲܕܝܼܫܵܐ ݂ ܘܪܵܒܵܐ ܓܵܗܹ̈ܐ ܒܸܕ ܚܵܙܹܝܚ ܠܦܲܖ̈ܟ̰ܹܐ ܩܛܝܼܖܹ̈ܐ ܒܝܲܕ ܚܲܓܵܝܹ̈ܐ ܠܡܸܬܥܲܒܪܵܢܘܼܬ݂ܐ ܒܡܸܢܕܝܼ ܕܒܵܥܝܼܠܹܗ ݂

ܚܵܒ݂ܫܵܐ ܡܫܘܼܚܬܐ (المساحة) ܩܲܕܝܼܫܬܐ ܠܟܠܚܲܕ ܩܲܒ݂ܪܵܐ ܐܝܼܙܝܼܕܵܝܵܐ: ܥܲܠ ܚܕܵܐ ܪܨܝܼܦܬܐ (كاشية) ܕܩܵܕܹܡܠܵܗ̇: ܐܲܘ ܕܟܵܪܹܟ݂ ܠܵܗ̇ ݂ ܠܗܵܕܹܐ ܥܸܠܬܐ: ܘܵܠܹܐ ܥܲܠ ܟܠ ܣܵܥܘܿܪܵܐ ܕܫܵܠܹܚ (ܫܵܠܹܦ) ܠܲܡܣܵܢܹܗ (ܨܲܘܠܹܗ) ܡܼܢ ܩܕܵܡ ܥܒ݂ܵܪܬܐ ܠܗܵܕܹܐ ܕܘܼܟܬܐ ܩܲܕܝܼܫܬܐ ݂

أضرحة وقبب المركز الروحي في لاليش.
حزيران 2018 © باسكال ماغيسيان / ميزوبوتاميا

ܪܵܓ݂ܘܿܠܵܐ ܕܠܵܠܸܫ: ܡܲܒܘܼܥܵܐ ܕܐܝܼܙܝܼܕܵܝܘܼܬ݂ܐ:

ܠܦܘܼܬ݂ ܝܘܼܒܵܠܵܐ ܐܝܼܙܝܼܕܵܝܵܐ: ܐܲܠܵܗܵܐ ܠܚܘܿܕܹܗ ܟܹܐ ܚܵܝܹܐ ܒܗܵܢܵܐ ܪܵܓ݂ܘܿܠܵܐ ܡܲܚܪܵܝܵܐ ݂ ܥܲܠܗܵܕܹܐ ܠܲܝܬ ܓܵܘܹܗ ܥܵܡܘܿܖܹ̈ܐ ܒܐܲܡܝܼܢܘܼܬܐ ܣܛܲܪ ܡܼܢ ܡܸܫܬܲܐܠܵܢܵܐ ܬܲܘܕܝܼܬܵܢܵܝܵܐ ܥܲܠ ܢܛܝܼܪܘܼܬ݂ܐ (صيانة) ܕܒܸܢܝܵܢܹ̈ܐ ܩܲܕܝܼܫܹ̈ܐ: ܒܗܿܝ ܕܟܹܐ ܐܵܬܝܼ ܚܲܓܵܝܹ̈ܐ ܠܗܵܕܹܐ ܕܘܼܟܬܐ ܒܲܠܚܘܿܕ ܒܝܲܘܡܵܢܹ̈ܐ ܕܥܹܐܕܹ̈ܐ ܬܲܘܕܝܼܬܵܢܵܝܹ̈ܐ ݂

ܟܝܵܢܵܐ ܡܦܲܚܠܵܢܵܐ ܘܡܸܫܬܲܡܗܵܢܵܐ ܒܪܵܡܘܼܬܐ: ܦܵܐܹܫ ܡܸܢܝܵܐ ܪܵܓ݂ܘܿܠܵܐ ܕܠܵܠܸܫ ܐܲܝܟ݂ ܚܲܕ ܫܲܘܦܵܐ ܩܸܢܛܪܘܿܢܵܝܵܐ ܘܚܲܝܘܼܬܵܢܵܐ ܠܐܝܼܙܝܼܕܵܝܹ̈ܐ: ܘܝܼܠܹܗ ܚܲܕ ܫܲܘܦܵܐ ܩܲܕܝܼܫܵܐ ܟܵܪܟ݂ܝܼܠܹܗ ܛܘܼܖ̈ܵܢܹܐ ܡܼܢ ܬܠܵܬܐ ܓܹܒܵܢܹ̈ܐ: ܘܥܵܒ݂ܪܝܼ ܓܵܘܹܗ ܡܲܒܘܼܥܹ̈ܐ ܕܡܲܝܵܐ ܘܫܵܩܝܵܬ̈ܐ ܕܟܹܐ ܡܲܫܬܝܼ ܠܥܵܒܹ̈ܐ ܥܲܬܝܼܖܹ̈ܐ ܘܲܡܫܲܚܠܦܹ̈ܐ ݂

ܓܲܘ ܠܵܠܸܫ: ܟܝܵܢܵܐ ܘܡܲܚܵܪܘܼܬܐ ܐܲܪܕܸܟ݂ܠܵܝܬܐ: ܟܹܐ ܡܬܲܪܨܝܼ ܚܕܵܐ ܡܫܘܼܚܬܐ ܩܲܕܝܼܫܬܐ ܘܲܦܪܝܼܫܬܐ ܒܐܵܕܫܵܗ̇: ܐܲܝܟܵܐ ܕܐܝܼܬ ܠܟܠ ܟܹܐܦܵܐ ܘܲܠܟܠ ܒܸܢܝܵܢܵܐ ܚܲܕ ܣܘܼܟܵܠܵܐ ܪܘܼܚܵܢܵܝܵܐ ݂ ܟܹܐ ܦܵܝܫܝܼ ܡܫܲܡܗܹ̈ܐ ܪܵܒܵܐ ܒܸܢܝܵܢܹ̈ܐ ܘܕܘܼܟܵܢܹ̈ܐ ܩܲܕܝܼܫܹ̈ܐ ܓܲܘ ܠܵܠܸܫ (ܩܲܒ݂ܖܹ̈ܐ ܘܲܡܩܲܕܫܵܬ̈ܐ ܘܓܸܦܹ̈ܐ ܘܕܘܼܟܵܢܹ̈ܐ ܕܡܲܥܡܘܿܕܝܼܬܐ: (ܟܵܢܝܵܐ ܣܦܹܐ): ܘܒܹܝܬ ܡܲܫܟܢܵܐ ܕ(ܚܵܢܵܐ ܐܹܝܙܝܼ): ܘܓܸܫܪܵܐ ܕ(ܣܝܼܠܵܬ)): ܒܡܲܟܝܼܟ݂ܘܼܬܐ ܘܲܒܚܸܙܘܵܐ ܪܝܼܦܵܝܵܐ ܕܠܵܚܹܡ ܥܲܡ ܚܲܝܹ̈ܐ ܒܲܖ̈ܵܝܹܐ ܕܲܟܖ̈ܝܼܟܹܐ ܝܢܵܐ ܐܸܒܹܗ ݂ ܫܵܠܚܝܼ ܐܝܼܙܝܼܕܵܝܹ̈ܐ ܘܐܵܖ̈ܚܲܝܗܝ ܠܲܡܣܵܢܲܝܗܝ (ܨܲܘܠܲܝܗܝ) ܒܥܸܕܵܢ ܕܗܵܘܝܼ ܒܐܵܗܵܐ ܫܲܘܦܵܐ ܩܲܕܝܼܫܵܐ ܐܝܼܩܵܪܵܐ ܠܹܗ: ܘܡܲܝܬܹܐ ܦܹܐܖܹ̈ܐ ܘܛܲܖ̈ܦܹܐ ܕܐܝܼܠܵܢܹ̈ܐ ܟܲܕ ܐܝܼܬ ܠܗ݇ܘܿܢ ܕܝܼܠܵܝܵܬ̈ܐ ܚܘܼܠܡܵܢܵܝܹ̈ܐ ܘܖ̈ܘܼܚܵܢܝܹܐ ܦܖ̈ܝܼܫܹܐ ݂ ܘܐܵܦ ܒܸܕ ܕܵܟܪܲܚ ܠܛܲܟ݂ܣܹ̈ܐ ܘܲܥܝܵܕܹ̈ܐ ܕܐܝܼܙܝܼܕܵܝܹ̈ܐ: ܛܘܼܪ(ܗܹܝܙܪܹܝܬ ܘܥܲܪܲܦܵܬ ܘܡܝܼܫܝܼܬ): ܒܗܿܝ ܕܟܹܐ ܚܵܫܒ݂ܝܼ ܐܝܼܙܝܼܕܵܝܹ̈ܐ ܕܛܘܼܪܵܐ ܩܲܪܝܼܒ݂ܵܐ ܝܠܹܗ ܡܼܢ ܦܲܪܕܲܝܣܵܐ ܐܲܝܟܵܐ ܕܟܹܐ ܫܵܟܹܢ ܐܲܠܵܗܵܐ: ܘܗܿܘ ܝܼܠܹܗ ܢܘܼܩܙܵܐ ܕܲܬܦܵܩܬܐ ܕܐܲܪܥܵܐ ܘܲܫܡܲܝܵܐ ݂ ܠܵܠܸܫ ܝܼܠܵܗ̇ ܗܵܝ ܕܘܼܟܬܐ ܝܲܬܝܼܪ ܐܵܢܲܢܩܵܝܬܐ ܠܘܵܬ ܐܝܼܙܝܼܕܵܝܹ̈ܐ: ܘܐܝܼܬ ܓܵܘܵܗ̇ ܩܲܒ݂ܪܵܐ ܕܫܹܝܟ݂ ܥܵܐܕܝܼ ܐܲܝܟ݂ ܚܲܕ ܢܘܼܩܙܵܐ ܣܲܪܢܵܝܵܐ ݂ ܦܝܼܫܠܹܗ ܪܵܓ݂ܘܿܠܵܐ ܕܠܵܠܸܫ ܩܘܼܛܒܵܐ ܪܘܼܚܵܢܵܝܵܐ ܐܸܣܵܝܵܐ ܩܵܐ ܐܝܼܙܝܼܕܵܝܹ̈ܐ: ܗ: ܕ: ܦܢܝܼܬܐ ܕܟܹܐ ܡܨܲܠܝܼ ܠܨܲܘܒܵܗ̇ ܡܗܘܼܡܢܹ̈ܐ ܐܝܼܙܝܼܕܵܝܹ̈ܐ ݂

ܣܲܓܝܼܐܘܼܬܐ ܘܝܵܪܬܘܼܬܐ ܘܝܼܚܝܼܕܵܝܘܼܬܐ ܪܘܼܚܵܢܵܝܬܐ: ܡܬܲܪܨܝܼ ܒܸܢܝܵܢܹ̈ܐ ܡܫܲܚܠܦܹ̈ܐ ܕܓܲܘ ܠܵܠܸܫ ܚܲܕ ܟܢܘܼܫܝܵܐ ܡܫܲܘܬܦܵܐ: ܦܝܼܫܠܹܗ ܡܛܲܘܪܵܐ ܚܕܵܪ ܩܲܒ݂ܪܵܐ ܕܫܹܝܟ݂ ܥܵܐܕܝܼ ܕܟܹܐ ܡܵܬܹܚ ܠܬܸܠܠܹ̈ܐ ܟܖ̈ܝܼܟܹܐ ݂ ܐܝܼܢܵܐ ܥܲܡ ܗܵܕܹܐ: ܟܠ ܒܸܢܝܵܢܵܐ ܐܝܼܬ ܠܹܗ ܗܝܼܵܝܘܼܬܹܗ ܦܪܝܼܫܬܐ: ܘܕܲܘܪܹܗ ܡܬܲܚܡܵܐ ܝܠܹܗ ܒܥܸܕܵܢ ܙܘܼܝܵܚܹ̈ܐ ܘܛܲܟ݂ܣܹ̈ܐ ܐܲܩܡܵܝܹ̈ܐ ݂

نوح والطرفان و المركز الروحي في لاليش ضمن التقليد الإيزيدي.
حزيران 2018 © باسكال ماغيسيان / ميزوبوتاميا
أشجار للنذور ضمن المركز الروحي في لاليش.
حزيران 2018 © باسكال ماغيسيان / ميزوبوتاميا

ܪܵܓ݂ܘܿܠܵܐ ܕܠܵܠܸܫ: ܒܹܝܬ ܓܲܘܣܵܐ ܠܲܫܠܵܡܵܐ ܚܒ݂ܝܼܨܵܐ ܒܚܲܝܹ̈ܐ:

ܓܲܘ ܚܕܵܐ ܦܢܝܼܬܐ ܛܘܼܪܵܝܬܐ ܦܪܝܼܫܬܐ ܘܲܪܚܝܼܩܬܐ ܡܸܠܝܵܐܝܼܬ ܡܼܢ ܫܸܛܚܵܐ ܕܢܝܼܢܘܹܐ ܘܡܲܘܨܸܠ: ܐܲܝܟܵܐ ܕܲܒܪܹܐ ܠܗ݇ܘܿܢ ܦܠܵܫܹ̈ܐ ܡܲܙܕܥܵܢܹ̈ܐ: ܦܵܐܹܫ ܡܸܢܝܵܐ ܘܲܚܫܝܼܒ݂ܵܐ ܩܸܢܛܪܘܿܢ ܪܘܼܚܵܢܵܝܵܐ ܓܲܘ ܠܵܠܸܫ: ܚܲܕ ܒܹܝܬ ܓܲܘܣܵܐ (ملجأ) ܠܲܫܠܵܡܵܐ ܒܥܸܕܵܢ ܫܓ݂ܘܼܫܝܵܐ ܡܫܲܠܛܵܐ: ܐܲܝܟ݂ ܚܲܕ ܕܘܼܟܵܐ ܡܸܠܝܵܐ ܡܼܢ ܚܲܝܘܼܬܵܢܘܼܬܐ ܠܒܲܪ ܙܲܒ݂ܢܵܐ ܗܵܢܵܐ ݂ ܐܵܬܝܼ ܠܹܗ ܘܣܵܥܪܝܼ ܠܹܗ ܚܲܓܵܝܹ̈ܐ ܡܼܢ ܟܠܲܝܗܝ ܫܸܢܹ̈ܐ: ܒܚܲܕ ܐܵܐܲܪ ܡܼܢ ܬܸܫܒܘܿܚܬܐ ܘܕܸܚܠܬܵܐ ܘܙܘܼܝܵܚܵܐ ܒܥܲܝܢܵܐ ܕܥܸܕܵܢܵܐ ݂

ܠܵܠܸܫ ܟܹܐ ܡܟܲܢܫܵܐ ܠܟܠܲܝܗܝ ܒܢܲܝ̈ ܐܝܼܙܝܼܕܵܝܘܼܬܐ ܐܵܬܝܵܢܹ̈ܐ ܡܼܢ ܫܸܢܓܲܪ ܘܡܼܢ ܡܕܝܼܢܵܬܐ ܘܡܵܬܘܵܬܐ ܕܫܸܛܚܵܐ ܕܢܝܼܢܘܹܐ ܘܟܘܼܪܕܸܣܬܵܐܢ ݂ ܒܚܘܼܬܵܡܵܐ: ܒܸܕ ܬܵܦܩܲܚ ܒܐ݇ܢܵܫܹ̈ܐ ܡܼܢ ܐܲܬ݂ܖ̈ܵܘܵܬܐ ܕܲܦܪܝܼܣܘܼܬܐ ܐܲܝܟ݂: ܬܘܼܪܟܝܼܵܐ ܘܐܲܪܡܝܼܢܝܵܐ ܘܐܲܠܡܵܢܝܵܐ ܘܲܠܒܲܪ ܡܸܢܲܝܗܝ: ܒܸܕ ܚܵܙܹܝܚ ܠܝܼܩܖ̈ܵܬܐ ܡܟܲܘܢܹ̈ܐ ܡܼܢ ܬܠܵܬܐ ܕܵܖܹ̈ܐ: ܕܟܹܐ ܡܲܥܒܸܪܝܼ ܟܠܹܗ ܝܲܘܡܵܐ ܓܲܘ ܠܵܠܸܫ: ܘܩܵܝܡܝܼ ܒܲܚܙܘܼܩܝܹ̈ܐ ܓܲܘ ܥܵܒ݂ܵܐ: ܘܐܵܬܝܼ ܦܲܖ̈ܨܘܿܦܹܐ ܓܒ݂ܝܼܖܹ̈ܐ ܚܲܕܬܵܐܝܼܬ ܠܡܲܥܡܘܿܕܹܐ ܫܲܒ݂ܖ̈ܝܲܗܝ ܬܵܡܵܐ ݂ ܘܗܵܕܟ݂ܵܐ ܡܵܨܹܝܚ ܕܐܵܡܪܲܚ ܕܠܵܠܸܫ ܚܒ݂ܝܼܨܵܐ ܝܠܹܗ ܒܚܲܝܹ̈ܐ ܘܡܸܠܝܵܐ ܡܼܢ ܚܲܝܘܼܬܵܢܘܼܬܐ (حيوية) ݂

طفلان من الإيزيديين في المركز الروحي في لاليش.
حزيران 2018 © باسكال ماغيسيان / ميزوبوتاميا
عامل ايزيدي في المركز الروحي في لاليش.
حزيران 2018 © باسكال ماغيسيان / ميزوبوتاميا
عامل ايزيدي في المركز الروحي في لاليش.
حزيران 2018 © باسكال ماغيسيان / ميزوبوتاميا
عائلة ايزيدية في المركز الروحي في لاليش.
حزيران 2018 © باسكال ماغيسيان / ميزوبوتاميا

ܩܲܒ݂ܪܵܐ ܕܫܹܝܟ݂ ܥܵܐܕܝܼ: ܚܝܵܪܬܐ ܓܵܘܵܢܵܝܬܐ

ܦܵܐܹܫ ܚܫܝܼܒ݂ܵܐ ܩܲܒ݂ܪܵܐ ܕܫܹܝܟ݂ ܥܵܐܕܝܼ: ܢܘܼܩܙܵܐ ܣܲܪܢܵܝܵܐ ܠܟܠ ܚܲܓܵܐ ܕܦܵܐܹܫ ܥܒ݂ܝܼܕܵܐ ܠ(ܠܵܠܸܫ): ܟܲܕ ܫܵܓ݂ܹܠ ܚܸܪܡܵܐ ܕܫܹܝܟ݂ ܥܵܐܕܝܼ ܩܸܢܛܪܘܿܢ ܕܪܵܓ݂ܘܿܠܵܐ ܕܠܵܠܸܫ ݂ ܐܵܗܵܐ ܕܘܼܟܬܐ ܛܵܥܢܵܐ ܫܸܡܵܐ ܕܫܹܝܟ݂ ܥܵܐܕܝܼ ܐܲܝܟܵܐ ܕܐܝܼܬ ܩܲܒ݂ܪܹܗ: ܘܟܵܪܹܟ݂ ܒܹܗ (ܟܵܢܝܵܐ ܣܦܹܐ) ܒܬܲܝܡܢܵܐ ܡܲܥܪܒ݂ܵܝܵܐ: ܘܩܲܒ݂ܪܵܐ ܕ(ܫܹܝܟ݂ ܫܲܡܣ) ܒܡܲܥܪܒ݂ܵܐ ݂ ܒܸܢܝܵܢܵܐ ܦܵܐܹܫ ܝܼܕܝܼܥܵܐ ܐܵܦ ܒܫܸܡ: ܡܲܥܒ̇ܕܵܐ (ܒܹܝܬ ܣܓ݂ܵܕܵܐ) ܕܠܵܠܸܫ: ܘܟܵܪܟ݂ܝܼ ܠܹܗ ܐܝܼܠܵܢܹ̈ܐ ܡܼܢ ܬܠܵܬܐ ܓܹܒܵܢܹ̈ܐ: ܛܘܼܪܵܐ ܕܗܹܝܙܪܹܝܬ ܡܼܢ ܡܲܥܪܒ݂ܵܐ: ܘܛܘܼܪܵܐ ܕܥܲܪܲܦܵܬ ܡܼܢ ܓܲܪܒܝܵܐ: ܘܛܘܼܪܵܐ ܕܡܝܼܫܝܼܬ ܡܼܢ ܬܲܝܡܢܵܐ ݂ ܘܐܝܼܬ ܠܬܲܚܬ ܕܚܸܪܡܵܐ: ܚܕܵܐ ܫܵܩܝܼܬܐ ܕܡܲܝܼܵܐ ܓ̰ܵܪܝܵܐ ܡܼܢ ܓܲܪܒܝܵܐ ܠܬܲܝܡܢܵܐ: ܘܦܵܝܫܵܐ ܒܸܓ̰ܪܵܝܵܐ ܡܼܢ ܡܲܥܪܒ݂ܵܐ ܠܡܲܕܢܚܵܐ ݂ ܐܵܬܝܼ ܗܵܠܹܝܢ ܡܲܝܼܵܐ ܡܼܢ ܡܲܒܥܵܐ ܕ(ܙܼܡܙܸܡ) ܕܢܵܦܹܠ ܓܲܘ ܓܸܦܵܐ ܚܵܝܘܿܪܵܐ ܠܒܸܢܝܵܢܵܐ ݂

لمركز الروحي للإزيديين في لاليش
© د. بيرجول أسكيلديز سنغول، جامعة أكسفورد و مونبلييه الثالثة.

ܩܲܒ݂ܪܵܐ ܕܫܹܝܟ݂ ܥܵܐܕܝܼ: ܬܲܫܥܝܼܬܐ:

ܠܵܐ ܝܠܵܗ̇ ܡܸܬܡܲܨܝܵܢܝܼܬܐ ܫܟܵܚܬܐ ܐܲܘ ܚܙܵܝܬܐ ܕܲܚܕܵܐ ܟܬܝܼܒ݂ܬܐ ܕܪܵܡܙܵܐ ܠܬܲܫܥܝܼܬܐ ܕܗܵܢ ܒܸܢܝܵܢܵܐ: ܐܝܼܢܵܐ ܓܠܝܼܬܐ ܝܠܵܗ̇ ܕܒܸܢܝܵܢܵܐ ܚܙܹܐ ܠܹܗ ܠܬܘܼܖ̈ܵܨܹܐ ܡܫܲܚܠܦܹ̈ܐ ܡܼܢ ܣܝܼܩܘܿܡ ܫܘܼܬܐܵܣܹܗ ݂

ܡܵܨܹܝܚ ܦܵܪܫܲܚ ܒܨܝܼܪܵܐܝܼܬ: ܠܐܲܪܒܲܥ ܡܲܫܩܠܹ̈ܐ ܐܵܢܲܢܩܵܝܹ̈ܐ ܕܓܲܘ ܒܸܢܝܵܢܵܐ: ܡܲܫܩܠܵܐ ܕܫܘܼܬܐܵܣܵܐ ܕ(ܙܵܘܝܼܵܐ) ܒܫܘܼܪܵܝܵܐ ܕܕܵܪܵܐ ܕ(12): ܘܡܲܫܩܠܵܐ ܕܲܒܢܵܝܬܐ ܕܩܲܒ݂ܪܵܐ ܕܫܹܝܟ݂ ܥܵܐܕܝ ܒܦܲܠܓܵܐ ܬܪܲܝܵܢܵܐ ܡܼܢ ܕܵܪܵܐ ܕ(12): ܘܝܼܠܹܗ ܚܲܕ ܫܘܼܚܠܵܦܵܐ ܪܹܫܵܝܵܐ ܓܲܘ ܕܵܪܵܐ ܕ(12): ܘܲܒܢܵܝܬܐ ܕܩܲܒ݂ܪܵܐ ܕܫܹܝܟ݂ ܥܵܐܕܝܼ ܘܐܵܘܵܢܵܐ ܕܲܟܦܵܫܝܵܬ̈ܐ ܘܐܵܘܵܢܵܐ ܕ(ܫܲܪܦܕܝܼܢ): ܘܐܝܼܬ ܫܘܼܚܠܵܦܵܐ ܐ݇ܚܪܹܢܵܐ ܒܕܵܪܵܐ ܕܥܸܣܪܝܼܢ ܥܲܡ ܒܸܢܝܵܢܹ̈ܐ ܟܖ̈ܝܼܟܹܐ ܒܕܵܪܬܐ ܓܹܒܵܢܵܝܬܐ ݂

ܐܝܼܡܲܢ ܕܲܦܣܸܩܠܹܗ ܫܹܝܟ݂ ܥܵܐܕܝܼ ܕܦܵܪܹܫ ܘܩܵܛܹܥ ܡܼܢ ܥܵܠܡܵܐ ܒܩܘܼܪܒܵܐ ܠܫܲܢ݇ܬܐ ܕ1111 ܠܡܵܪܲܢ (505 ܗܸܓܪܵܝܬܐ): ܡܫܘܼܬܐܸܣܠܹܗ ܠ(ܙܵܘܝܼܵܐ: زاويا) ܩܵܐ ܬܲܠܡܝܼܕܹ̈ܗ ܓܲܘ ܠܵܠܸܫ: ܠܓܹܒܵܐ ܕܚܲܕ ܡܲܒܥܵܐ ܕܡܲܝܼܵܐ ܩܪܹܐ ܠܗ݇ܘܿܢ ܐܝܼܙܝܼܕܵܝܹ̈ܐ ܒܵܬܲܪܟܸܢ ܠܫܸܡ: ܙܸܡܙܸܡ ݂ ܟܒܲܪ ܐܵܘܵܢܹ̈ܐ ܕܓܲܘ ܟܸܦܬܐ (القبو) ܕܟܘܼܢܵܫܵܐ (ܒܸܢܝܵܢܵܐ ܡܫܲܘܬܦܵܐ): ܐܝܼܬ ܗ݇ܘܵܐ ܡܼܢ ܩܕܵܡ ܡܛܵܝܬܐ ܕܫܹܝܟ݂ ܥܵܐܕܝܼ: ܘܲܟܒܲܪ ܦܝܼܫܹ̈ܐ ܝܗ݇ܘܵܘ ܡܘܼܦܠܚܹ̈ܐ ܓܲܘ ܥܝܵܕܹ̈ܐ ܘܛܲܟ݂ܣܹ̈ܐ ܕܙܲܖ̈ܕܲܫܬܵܝܹܐ ܐܲܘ ܕܡܝܼܬ݂ܖ̈ܵܝܹܐ ܐܲܘ ܕܲܡܫܝܼܚܵܝܹ̈ܐ ݂ ܝܲܬܝܼܪ ܥܲܠ ܗܵܕܹܐ: ܦܝܼܫܠܗ݇ܘܿܢ ܫܟܝܼܚܹ̈ܐ ܡܲܥܒܕܹ̈ܐ ܕ(ܡܝܼܬ݂ܪܵܝܟ: ܡܝܼܬ݂ܪܵܝܵܐ) ܒܪܵܒܵܐ ܕܘܼܟܵܢܹ̈ܐ ܓܲܘ ܐܸܡܦܪܵܛܘܿܪܘܼܬܐ ܪܗܘܿܡܵܢܵܝܬܐ: ܐܲܝܟܵܐ ܕܣܵܓ݂ܕܝܼ ܦܵܠܚܹ̈ܐ ܖ̈ܗܘܿܡܵܝܹܐ ܠܐܲܠܵܗܲܝܗܝ ݂ ܡܵܕܹܝܢ ܡܸܬܡܲܨܝܵܢܝܼܬܐ ܝܠܵܗ̇ ܚܙܵܝܬܐ ܕܚܲܕ ܐܲܣܘܼܪܵܐ ܒܹܝܢ ܓܸܦܵܐ ܕܐܝܼܬ ܠܕܸܦܢܵܐ ܕܡܲܒܥܵܐ ܕ(ܙܸܡܙܸܡ) ܘ(ܡܝܼܬ݂ܪܵܣ): ܘܡܲܥܒܕܵܢܘܼܬܲܝܗܝ ܚܫܝܼܒ݂ܬܐ ܘܲܣܒ݂ܝܼܪܬܐ ܥܲܠ ܬܲܘܕܝܼܬܐ ܘܗܲܝܡܵܢܘܼܬܐ ܐܝܼܙܝܼܕܵܝܬܐ ݂

ܒܵܬܲܪ ܡܲܘܬܐ ܕܫܹܝܟ݂ ܥܵܐܕܝܼ ܒܫܲܢ݇ܬܐ ܕ(1162): ܦܣܸܩܠܗ݇ܘܿܢ ܬܲܠܡܝܼܕܹ̈ܗ ܕܒܵܢܝܼ ܠܚܲܕ ܩܲܒ݂ܪܵܐ ܥܲܠ ܐܝܼܩܵܪܹܗ: ܕܦܝܼܫܠܹܗ ܒܵܬܲܪܟܸܢ ܚܲܕ ܩܲܒ݂ܪܵܐ ܘܫܲܘܦܵܐ ܡܫܲܡܗܵܐ: ܕܐܵܬܝܼ ܠܹܗ ܚܲܕ ܡܸܢܝܵܢܵܐ ܪܵܒܵܐ ܡܼܢ ܡܲܫܠܡܵܢܹ̈ܐ ܘܠܵܐ ܡܲܫܠܡܵܢܹ̈ܐ ܕܚܵܕܪܝܼ ܗ݇ܘܵܘ ܠܐܵܣܝܘܼܬܐ ܘܣܘܼܡܣܵܡܵܐ ܠܥܸܠܠܵܬܲܝܗܝ ܘܩܸܛܖ̈ܲܝܗܝ ݂ ܩܲܒ݂ܪܵܐ ܕܫܹܝܟ݂ ܥܵܐܕܝܼ ܡܪܲܒܥܵܐ ܝܠܹܗ ܘܐܝܼܬ ܠܹܗ ܚܕܵܐ ܩܘܼܒܬܐ: ܘܝܼܠܹܗ ܚܲܕ ܣܘܼܟܵܡܵܐ ܐܲܘ ܬܘܼܩܵܢܵܐ ܕܕܵܥܹܪ ܠܕܵܖܹ̈ܐ (12) ܘ(13): ܘܟܹܐ ܦܵܐܹܫ ܡܘܼܦܠܚܵܐ ܐܵܦ ܒܝܲܕ (ܫܝܼܥܵܐ) ܓܲܘ ܦܢܝܼܬܐ ܕܡܲܘܨܸܠ ܠܲܒܢܵܝܵܐ ܩܲܒ݂ܖ̈ܵܘܵܬܲܝܗܝ ݂ ܩܲܒ݂ܪܵܐ ܕܫܹܝܟ݂ (ܗܲܣܲܢ) ܦܝܼܫܠܹܗ ܒܸܢܝܵܐ ܒܵܬܲܪ ܡܲܘܬܹܗ ܒܫܲܢ݇ܬܐ ܕ1254 ݂

باحة خارجية أمام مدخل الحرم الإيزيدي في لاليش.
حزيران 2018 © باسكال ماغيسيان / ميزوبوتاميا
مدخل الحرم الإيزيدي في لاليش.
حزيران 2018 © باسكال ماغيسيان / ميزوبوتاميا
باب مدخل الحرم الإيزيدي في لاليش.
حزيران 2018 © باسكال ماغيسيان / ميزوبوتاميا
باحة داخلية أمام مدخل الحرم الإيزيدي في لاليش.
حزيران 2018 © باسكال ماغيسيان / ميزوبوتاميا
حجر جنائزي ضمن الباحة الداخلية للحرم الإيزيدي في لاليش.
حزيران 2018 © باسكال ماغيسيان / ميزوبوتاميا

ܩܲܒ݂ܪܵܐ ܕܫܹܝܟ݂ ܥܵܐܕܝܼ: ܛܘܼܘܵܪܵܐ ܬܲܫܥܝܼܬܵܢܵܝܵܐ:

ܡܸܬܗܲܘܝܵܢܝܼܬܐ ܝܠܵܗ̇ ܕܡܸܢܝܵܢܵܐ ܕܬܲܠܡܝܼܕܹ̈ܐ ܘܚܲܓܵܝܹ̈ܐ ܙܝܼܕ ܠܹܗ: ܘܒܸܢܝܵܢܹ̈ܐ ܕܐܝܼܬ ܗ݇ܘܵܐ ܒܲܩܕܝܼܡ ܠܵܐ ܦܝܼܫܠܗ݇ܘܿܢ ܡܵܠܝܵܢܹ̈ܐ ݂ ܘܠܗܵܕܹܐ ܥܸܠܬܐ ܦܝܼܫܠܗ݇ܘܿܢ ܡܘܿܘܣܸܦܹܐ ܡ̈ܢܵܘܵܬܵܐ ܡܫܲܚܠܦܹ̈ܐ ܢܲܩܝܼܦܵܐܝܼܬ ܥܲܠ ܒܸܢܝܵܢܵܐ ܩܕܝܼܡܵܝܵܐ ݂ ܥܲܠܗܵܕܹܐ: ܐܲܪܥܵܐ ܐܲܝܟܵܐ ܕܐܝܼܬ ܗ݇ܘܵܐ (ܙܵܘܝܼܵܐ): ܠܲܝܬ ܗ݇ܘܵܐ ܡܸܬܡܲܨܝܵܢܘܼܬܐ ܕܚܵܒ݂ܫܵܐ ܗ݇ܘܵܐ ܐܸܠܵܐ ܥܲܠ ܚܲܕ ܡܸܢܝܵܢܵܐ ܡܬܲܚܡܵܐ ܡܼܢ ܒܸܢܝܵܢܹ̈ܐ: ܗܵܕܟ݂ܵܐ ܬܲܠܡܝܼܕܹ̈ܐ ܕܐܝܼܙܝܼܕܵܝܹ̈ܐ ܗܘܹܐ ܠܗ݇ܘܿܢ ܐܲܠܝܼܨܹ̈ܐ ܕܒܵܢܝܼ ܒܸܢܝܵܢܹ̈ܐ ܚܲܕܬܹ̈ܐ ܠܲܡܠܵܝܵܐ ܣܢܝܼܩ̈ܘܵܬܐ ܕܚܲܓܵܝܹ̈ܐ ݂ ܘܥܲܡ ܗܵܕܹܐ: ܦܝܼܫܠܗ݇ܘܿܢ ܓܲܘ ܗܸܪܓܵܐ (التأمل) ܓܵܘܵܐ ܕܲܡܢܵܬܐ ܥܲܬܝܼܩܬܐ ܕܓܲܘ ܟܘܼܢܵܫܵܐ ݂

ܒܫܲܢ݇ܬܐ ܕ1414: ܦܝܼܫܠܹܗ ܡܘܼܚܪܸܒ݂ܵܐ ܩܲܒ݂ܪܵܐ ܕܫܹܝܟ݂ ܥܵܐܕܝܼ ܥܲܠ ܐܝܼܕܵܬܐ ܕ(ܓ̰ܲܠܵܠܠܸܕܝܼܢ ܡܘܼܚܲܡܲܕ ܒܲܪ ܥܸܙܵܕܕܝܼܢ ܝܘܿܣܸܦ ܐܲܠܚܲܠܘܵܢܝܼ) ܚܲܪܬܐ ܚܲܕܪܹܫܵܐ ܩܝܼܡܠܗ݇ܘܿܢ ܐܝܼܙܝܼܕܵܝܹ̈ܐ ܒܲܬܢܵܝܬܐ ܕܒܸܢܝܵܢܹܗ ݂

ܦܝܼܫܠܹܗ ܡܫܘܼܚܠܸܦܵܐ ܒܹܝܬ ܓܲܘܣܵܐ (الملجأ) ܠܡܲܕܪܲܫܬܐ: ܘܦܝܼܫܠܹܗ ܡܘܼܦܠܸܚܵܐ ܐܲܝܟ݂ ܡܲܕܪܲܫܬܐ ܬܲܘܕܝܼܬܵܢܵܝܬܐ (ܣܘܼܢܢܵܝܬܐ) ܒܝܲܕ ܥܘܼܬ݂ܡܵܢܵܝܹ̈ܐ ܒܹܝܬ ܫܸܢܹ̈ܐ ܕ 1890 ܘ 1907 ݂ ܒܗܵܝ ܥܸܕܵܢܵܐ: ܦܝܼܫܠܹܗ ܡܚܘܼܕܸܬܐ ܟܘܼܢܵܫܵܐ (المجمع) ݂ ܘܦܝܼܫܠܹܗ ܡܚܘܼܕܸܬ݂ܐ ܬܲܪܥܵܐ ܕ(ܕܹܝܪܹܐ ܟܵܦܝܼ) ܒܲܝܢܵܬ ܫܸܢܹ̈ܐ 1914 ܘ 1928 ݂ ܚܕܵܐ ܟܬܝܼܒ݂ܬܐ ܕܝܼܠܵܗ̇ ܥܲܠ ܦܵܬܐ ܕܡܲܥܠܵܢܵܐ ܪܹܫܵܝܵܐ: ܪܵܡܙܵܐ ܕܬܲܪܥܵܐ (ܕܹܝܪܹܐ ܟܵܦܝܼ) ܦܝܼܫܠܹܗ ܬܸܢܝܵܐ ܒܸܢܝܵܢܹܗ ܒܫܲܢ݇ܬܐ ܕ1979 ݂ ܚܲܪܬܐ ܦܝܼܫܠܗ݇ܘܿܢ ܒܸܢܝܹ̈ܐ ܒܸܢܝܵܢܹ̈ܐ ܐ݇ܚܖ̈ܵܢܹܐ: ܘܐܵܦ ܕܵܪܬܐ ܓܹܒܵܢܵܝܬܐ ܘܐܵܦ ܗܵܝ ܡܢܵܬܐ ܕܩܵܪܹܝܚܠܵܗ̇ ܡܢܵܬܵܐ ܥܠܵܝܬܐ ܕܚܲܕܬܐ ܝܠܹܗ ܫܘܼܬܐܵܣܵܗ̇ ݂ ܒܫܲܢ݇ܬܐ ܕ1989: ܓܘܼܕܵܢܹ̈ܐ ܓܵܘܵܝܹ̈ܐ ܒܩܲܒ݂ܪܵܐ ܕܫܹܝܟ݂ ܥܵܐܕܝܼ ܘܫܹܝܟ݂ ܗܲܣܲܢ ܡܟܘܼܣܝܹ̈ܐ ܝܗ݇ܘܵܘ ܒܫܝܼܫܵܐ: ܘܐܵܦ ܓܘܼܕܵܢܹ̈ܐ ܓܵܘܵܝܹ̈ܐ ܕܐܵܘܵܢܵܐ ܕܲܟܦܵܫܝܵܬ̈ܐ ܡܣܘܼܩܠܹ̈ܐ ܝܗ݇ܘܵܘ ܒܟܹܐܦܹ̈ܐ ܫܲܦܝܼܖܹ̈ܐ ݂

باحة داخلية و مدخل الحرم الإيزيدي في لاليش.
حزيران 2018 © باسكال ماغيسيان / ميزوبوتاميا
مدخل الحرم الإيزيدي في لاليش.
حزيران 2018 © باسكال ماغيسيان / ميزوبوتاميا
مدخل الحرم الإيزيدي في لاليش.
حزيران 2018 © باسكال ماغيسيان / ميزوبوتاميا
تفاصيل باب مدخل الحرم الإيزيدي في لاليش.
حزيران 2018 © باسكال ماغيسيان / ميزوبوتاميا
باب مدخل الحرم الإيزيدي في لاليش.
حزيران 2018 © باسكال ماغيسيان / ميزوبوتاميا

ضريح الشيخ عدي: التطور التاريخي

من الأرجح أن عدد التلاميذ والحجاج زاد وأن المباني التي كانت موجودة سابقاً لم تعد كافية. ولهذا السبب تم إضافة الأجزاء المختلفة على التوالي. لذا ، فإن الأرض ، حيث كانت الزاوية ، والتي لا يمكن أن تحتوي إلا على عدد محدود من المباني ، أجبرت تلاميذ الإيزيديين على بناء مباني جديدة لتلبية احتياجات الحجاج. ومع ذلك ، استمروا في التأمل ضمن الجزء القديم من المجمع.

في عام 1414 ، تم تدمير ضريح الشيخ عدي على يد جلال الدين محمد بن عز الدين يوسف الحلواني ثم قام الإيزيديون بإعادة بنائه على الفور.

تم تحويل الملجأ إلى مدرسة واستُخدم كمدرسة دينية سنّية من قبل العثمانيين بين عامي 1890 و 1907. في ذلك الوقت ، تم ترميم المجمع. تم تجديد باب (ديرية كابي) بين عامي 1914 و 1928. تشير كتابة موجودة على واجهة المدخل الرئيسي إلى أن باب (ديرية مير) قد أعيد بناؤه في عام 1979. ثم تمت إعادة بناء المباني الأخرى والساحة الجانبية وتلك التي نسميها الجزء العادي حديث الإنشاء. في عام 1989 ، كانت الجدران الداخلية في ضريح الشيخ عدي والشيخ حسن مغطاة بالرخام ، وكانت الجدران الداخلية لقاعة الاجتماعات مزينة أيضاً بالحجارة.

داخل الحرم الإيزيدي في لاليش.
حزيران 2018 © باسكال ماغيسيان / ميزوبوتاميا
نبع زمزم في الحرم الإيزيدي في لاليش.
حزيران 2018 © باسكال ماغيسيان / ميزوبوتاميا
ضريح الشيخ عدي في الحرم الإيزيدي في لاليش.
حزيران 2018 © باسكال ماغيسيان / ميزوبوتاميا
قاعة الجرات التي تحتوي الزيت المستخدم أثناء الاحتفالات في الحرم الإيزيدي في لاليش.
حزيران 2018 © باسكال ماغيسيان / ميزوبوتاميا

مكان المعمودية كانية سبي: الوظيفة، التأريخ، الوصف

لوظيفة: معناه باللغة الكردية “النبع الأبيض” ، كوماندجي. لا يصبح المرء إيزيدياً حقاً إلا بعد أن يتم تعميده في مدينة كانية ، ويفضل أن يتم ذلك بين عمر  الستة أشهر والسنة ، لكن يتم أيضاً تعميد الأطفال والكبار هناك. والمعمودية عبارة عن اجتفال بسيط للغاية، ففي غرفة المعمودية ، تقوم سيدة من الشيوخ برش وجه المعمّد بمياه الينابيع البيضاء الموجودة في الحوض وتقوم بتلاوة بعض الصلوات. هذا هو كل شيء. وبعد ذلك ، في المدخل ، يلقي الضيوف السكاكر في الهواء عند مرور المعمد حديثًا ليتمنوا له سعادة في الحياة.

التأريخ: تقع كانية سبي إلى الشمال الشرقي من ضريح الشيخ شمس وإلى الجنوب الغربي من ضريح الشيخ عدي. كان هناك كتابة باللغة العربية على الجدار الشرقي بالتواريخ التالية 1113/1779 و 1246 / 1830-1835 كتواريخ إعادة الإعمار. نلاحظ مرحلتين من البناء: مرحلة الأساس في القرن الثالث عشر ومرحلة التغيير المتأخر، وعلى الأغلب، تمت إضافة القبة المخروطية ذات الحواف المتعددة في الفترة التي أصبحت فيها القبب المخروطية عنصراً لا مفر منه في العمارة الإيزيدية.

يوجد قوس مكسور عند الإيوان الجنوبي و من المحتمل أنه يعود إلى القرن الرابع عشر كضريح ريوال كيفينيه في بوزان. نلاحظ أيضاً زخرفة مماثلة مع تلك التي تحيط بباب مجمع كانيا كورك ، في دير مار بهنام العائد إلى القرن الثالث عشر.

الوصف: يتألف مكان المعمودية كانية سبي من ثلاثة أقسام رئيسية وقسم للزوار،  (الإيوان و

الباحة الخارجية). تقع الباحة الخارجية شرق المبنى بقياس 10.20 × 6.20 م. ويحدها جدران منخفضة من ثلاث جهات. يوجد في الجهة الغربية  ما يسمى بكامية كورك وهي إحدى الأماكن الرئيسية التي من الصعب الوصول إليها من خلال باب ذو قوس منخفض.

يقع الإيوان جنوب الباحة  3.50 × 2.80م ، سقفه مسطح وفيه قوس مكسور. توجد منصة مقابل الجدار الجنوبي يجلس عليها الزوار.

أما على الجدار الغربي فهناك باب نصل من خلاله إلى داخل  القسم الرئيسي  الذي يدعى كانية سبي، فيه باحة مستطيلة الشكل  باتجاه الشرق والغرب. يوجد في منتصف الغرفة حوض محاط بالحجارة الكبيرة. في الركن الشمالي الغربي توجد نافذة صغيرة بجهة الشرق تودع فيها فتائل الزيت. يعلو هذا المكان قبة مخروطية صغيرة أما السقف الموجود فوق الحوض فهو مقبب الشكل ذو مخروطي من الخارج ومتعدد الحواف.

إلى الشمال من المبنى يوجد حوضان وإيوان سفلي مقبب من الداخل ومسطح من الخارج. في الركن الجنوبي الغربي من هذا الإيوان يوجد باب صغير يؤدي إلى غرفة ربما كانت تستخدم كغرفة انتظار. من خلال الجدار الغربي نصل إلى القسم الرئيسي الثالث الذي يدعىكانية كيتشيك وهو مستطيل الشكل ، موجهة نحو الشمال والجنوب وتبلغ مساحته 3.80 × 3.20 م. توجد في منتصف هذا الساحة أيضاً حوض للمياه لكن مساحة هذه الغرفة أكبر من كانية كوريك ولا يوجد فيها أي نافذة لذلك نجد أن الداخل مظلم ويصعب الوصول إليها لذلك لم تعد تستخدم في وقتنا هذا.

بنيت الجدران الخارجية للمبنى من الحجر. القبة مخروطية الشكل أما الإيوان فهو من الحجر الأصفر. كما تم بناء أرضية أحواض المياه من الحجار الكبيرة باستثناء السطح المخروطي المبني من الاسمنت المسلح وتم طلاء الجدران الداخلية باللون الأبيض.

يتميز الباب الصغير الموجود في الجدار الشرقي المطل على الباحة بتصميم فريد إذ يوجد فوقه زخرفة تمثل ثلاثة وردات وفي الجزء الآخر توجد أشكال مختلفة من المزهريات.

مخطط مكان معمودية كانية سبي في المجمع الروحي للإزيديين في لاليش
© د. بيرجول أسكيلديز سنغول، جامعة أكسفورد
مخطط مكان معمودية كانية سبي في المجمع الروحي للإزيديين في لاليش
© د. بيرجول أسكيلديز سنغول، جامعة أكسفورد
مكان معمودية كانية سبي في المجمع الروحي للإزيديين في لاليش
© Dr. Birgül Açikyildiz-Şengül, universités d'Oxford et de Montpellier III
مكان المعمودية كانية سبي في المركز الروحي للإزيديين في لاليش.
حزيران 2018 © باسكال ماغيسيان / ميزوبوتاميا
مكان معمودية كانية سبي في المجمع الروحي للإزيديين في لاليش
© د. بيرجول أسكيلديز سنغول، جامعة أكسفورد
عمادة طفل في كانية سبي في المركز الروحي للإزيديين في لاليش.
حزيران 2018 © باسكال ماغيسيان / ميزوبوتاميا

ضريح الشيخ مشلّح:

يقع غرب ضريح الشيخ عدي ويفصل بينها شارع يسمى خفير رييه وهذا يعني الوصي على الطريق المؤدي إلى ضريح الشيخ عدي. الشيخ  مشلّح يأتي من عائلة  أداني ، ووفقاً للتقليد الإيزيدي ، فهو ابن زبيل فيروش وأخو الشيخ زفير وحسن فروش وسعيد مسعود. كما أن لأشقائه أضرحة بأسمائهم في بهزاني. لا توجد معلومات عن تاريخ حياتهم. يحتوي الضريح على باحة مستطيلة الشكل تعلوها قبة مخروطية ذو حواف متعددة من الخارج. نعتقد أنه تم استخدام هذا الشكل من الأضرحة من قبل الإيزيديين بشكل رئيسي في القرن الرابع عشر لذلك نستطيع القول أن الضؤيح يعود لهذا التاريخ.

مخطط الضريح مستطيل الشكل ، موجه نحو الشرق والغرب ويتألف من ثلاثة أجزاء: الشرفة ، غرفة الانتظار والجزء الرئيسي. تبلغ مساحة الشرفة الواقعة إلى الغرب من المبنى 9.30 × 4.50 م. يمكننا الوصول إلى هناك عن طريق درج مؤلف من 12 درجة إلى الغرب من المبنى. يحد هذا الشرفة من الجنوب سور مرتفع ومن الشمال سلسلة من الأعمدة المنخفضة. إلى الشرق من هذه الشرفة يوجد المدخل الذي يحتوي على قوس نصف دائري.

يتجه المدخل نحو الشرق والغرب ويبلغ قياسه 4.60 × 3.90 م. سقفه مسطح. يتم الوصول إلى الجزء الرئيسي من خلال باب مستطيل يقع على الجدار الشرقي للحائط. إنه مستطيل الشكل وأبعاده 3.90 × 2.70 متر. توجد منصة مقابل الجدار الجنوبي يوجد فيها القبر. له ثلاث نوافذ صغيرة لإضاءة الداخل وله  قبة مخروطية الشكل ذات حواف متعددة مكونة من 24 شريحة موضوعة على أسطوانة من ثلاثة أجزاء ، مربعة ، مثمنة ، ثم دائرية.

مخطط ضريح الشيخ مشلح في المجمع الروحي للإزيديين في لاليش
© د. بيرجول أسكيلديز سنغول، جامعة أكسفورد
ضريح الشيخ مشلح في المجمع الروحي للإزيديين في لاليش
© د. بيرجول أسكيلديز سنغول، جامعة أكسفورد

ضريح الشيخ شمس:

يقع على تلة ، جنوب غرب كانية سبو وضريح إزدينا مير.

على الرغم من أن الأيزيديون المؤمنون يصلون في كل الأماكن باتجاه الشمس، وأن القبب المخروطية للأضرحة ترمز إلى أشعة الشمس ، فإن الأيزيديين يبجلون الشمس بشكل كبير عند ضريح الشيخ شمس أكثر من أي مكان آخر. يعتقدون أن أشعة الشمس الأولى تسقط على القبة المخروطية لضريح الشيخ شمس. يتم الاحتفال بالعديد من الطقوس هناك تكريما للشمس الإلهية وخاصة التضحية بالثيران ، مرة واحدة في السنة ، في الخريف ، خلال حفل  خاص.

نعتقد بأن الشيخ شمس عاش في القرن الثاني عشر. خضع المبنى لتعديلات مختلفة منذ تأسيسه. نستطيع تمييز ثلاثة مراحل من البناء ومن المرجح أن البناء تأسس في القرن الثاني عشر، كانت في الأصل مكان مربع الشكل مع غرفة جلوس مستطيلة الشكل. تمت إضافة الجزء الطويل (الغرفة الثانية) بمرور الوقت ، لأن المبنى لم يكن كافيا لاستيعاب العديد من تلاميذ الشيخ شمس. يوجد اختلاف في مستويات البناء بين الغرفة الثانية والجزء الرئيسي وكذلك الغرفة الأولى. تحتوي هذه المساحات الثلاثة على تصميمات داخلية داكنة. تقع الأحواض مقابل الجدار الشرقي والشمالي في الغرفة الأولى. ويوجد نفس النوع من البناء في غرف ضريح الشيخ عدي. ربما كانت تستخدم من قبل الزاهدون خلال الاحتفالات أو الطقوس. توجد غرفة انتظار حديثة إلى الشرق من المجمع.

الضريح موجه من الشرق إلى الغرب على أرض مائلة مكونة من أربعة أجزاء. إلى الشمال الشرقي ، توجد غرفة الجلوس التي نصل اليها بواسطة درج حديث أبعادها 4.80 × 3.80 م ذو سقف مسطح. للجدران الشمالية والشرقية أقواس نصف دائرية ، و توجد منصة مقابل الجدار الجنوبي.

نستطيع الوصول إلى المبنى من خلال باب صغير منخفض في الجدار الغربي. تبلغ مساحته  13.50 × 3.50 م. لا توجد نوافذ خارجية باستثناء فتحة صغيرة موجودة في الجدار الشمالي. في الطرف الغربي من هذه الغرفة يوجد تابوت مغطى بأقمشة متعددة الألوان. يحتوي الجدار الجنوبي على نافذة صغيرة واثنتان كبيرتان ، نافذة تتصل بالمساحة المربعة وباب يؤدي إلى الباحة المستطيلة. يوجد باب في القسم الشرقي من الجدار ، ويؤدي إلى الباحة مروراً بدرج.

هذه الباحة مستطيلة الشكل بقياس 5.60 × 4.40 م. وليس معبدا. في الطرف الغربي من الجدار الجنوبي توجد نافذة صغيرة ويوجد حوض مياه مقابل الجدران الشرقية والشمالية. من هناك ، يوجد باب صغير يؤدي إلى الحائط الغربي ثم إلى آخر غرفة مربعة.

أبعاد القبة 3.80 × 3.40 م. إلى الغرب توجد منصة حيث ووضع التابوت سابقاً. في الجدار الشمالي ، توجد نافذة كبيرة تطل على الباحة المستطيلة الشكل باتجاه الشمال ولا توجد نافذة تطل إلى الخارج. تتميز القبة من الخارج بشكلها المخروطي المتعدد الحواف وله 32 شريحة. أما بالنسبة للأسطوانة ، فهي تتكون من ثلاثة مستويات ، مربعة ، مثمنة ودائرية. هناك فتحة صغيرة في البرميل الدائري يستخدم لتهوية الداخل.

إلى الشمال الشرقي ، يوجد حوض صغير مستطيل الشكل بعيد عن المبنى. يتم استخدامه خلال احتفالات تضحية الثور الأبيض تكريما لآلهة الشمس.

مخطط ضريح الشيخ شمس في المجمع الروحي للإزيديين في لاليش
© د. بيرجول أسكيلديز سنغول، جامعة أكسفورد
قبة ضريح الشيخ شمس في المجمع الروحي للإزيديين في لاليش
© د. بيرجول أسكيلديز سنغول، جامعة أكسفورد

جسر سيلات:

تم بناء جسر سيلات بالحجارة. يعتلي مجرى مياه صغير يدخل الوادي من الشمال ويعتبر الخط الفاصل بين المدنس والمقدس. له معنى رمزي للمؤمنين الذين يؤدون مراسم الحج هناك. يغسل الحجاج أيديهم ووجوههم في مجرى النهر ، في طريقهم إلى الجزء العلوي من الوادي ، حيث توجد معظم المباني.

جسر سيلات في المركز الروحي للإزيديين في لاليش.
حزيران 2018 © باسكال ماغيسيان / ميزوبوتاميا

Contribuez à la sauvegarde de la mémoire des monuments.

Photos de famille, vidéos, témoignages, partagez vos documents pour enrichir le site.

Je participe